Eladó családi ház Kiskunlacháza 87 900 000 Ft

Leírás

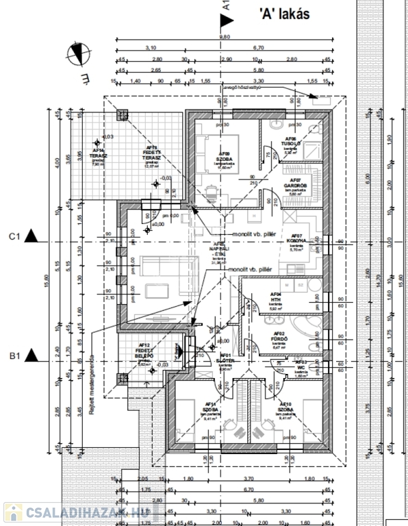
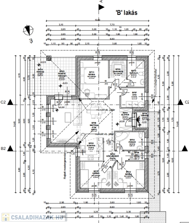
Eladásra kínálunk egy építés alatt álló ikerházat Kiskunlacháza kertvárosias részén, a Dömsödi út környékén.

Ikerház ellenére CSAK kertkapcsolattal rendelkezik, közös fal nincs!

Apró méret különbség van a 2 ház között:

A ház nettó 99,9 m2 bruttó 125,6 m2 - ára 89.900.000
B ház nettó 99,2 m2 bruttó 121,9 m2 - ára 87.900.000

A fűtésről modern hőszivattyú gondoskodik, amely környezetbarát és gazdaságos megoldást nyújt. Energetikai besorolása A+-os lesz!

Az ár tartalmazza az alábbiakat:
- díszkerítés betéttel,
- ház körül térköves járda
- térköves kocsibeálló

Az ikerház kertvárosi környezetben helyezkedik el, ideális választás lehet azok számára, akik nyugodt környéket keresnek.

Az ingatlan jelenleg építés alatt van, várható átadási ideje 2026 nyár.


Amennyiben felkeltettem érdeklődését keressen bizalommal, akár hétvégén is!

FINANSZÍROZÁS:
Nálunk mindent egy helyen intézhet:
- hivatalos ingatlanközvetítés;
- szakszerű jogi képviselet;
- profi CSOK-PLUSZ, és hitelügyintézés: 16 Bank, több mint 100 konstrukció;

VÁROM MEGTISZTELŐ HÍVÁSÁT!

A részletes adatvédelmi tájékoztató folyamatosan elérhető az oldalon.

Családi ház részletei

Ár: 87 900 000 Ft
Méret: 99 négyzetméter
Azonosító: 11580599
Irodai azonosító: 389803
Cím: Dömsödi út környéke
Telek: 733 négyzetméter
Ingatlan állapota: Épülő
Jelleg: ikerház
Építőanyag: Tégla
Fűtés jellege: Geotermikus
Fűtés módja: Hőszivattyú
Komfort fokozat: Összkomfort
Kor: Új építésű
Szintek száma: Földszintes
Egész szobák: 3

Egyéb jellemzők

  • Csatorna
  • Garázs
  • Pince
  • Terasz

Térkép


Így keressen családi házat négy egyszerű lépésben. Csupán 2 perc, kötelezettségek nélkül!

Szűkítse a családi házak
listáját
Válassza ki a megfelelő
családi házat
Írjon a hirdetőnek
Várjon a visszahívásra