Eladó családi ház Kiskunlacháza 84 150 000 Ft

Leírás

Új építésű, önálló családi házak Kiskunlacházán!

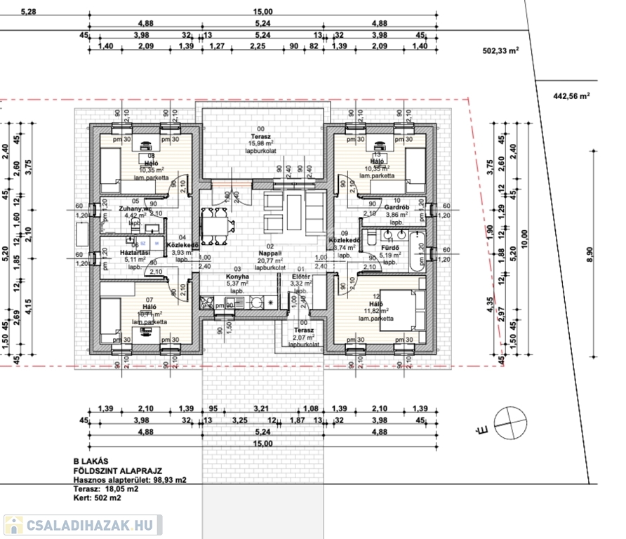
Nyugodt, csendes környezetben kínálunk megvételre nettó 99 nm-es önálló családi házat 502 nm-es telken.

A ház paraméterei:
alapterülete: nettó 99 nm.
beosztása:
- előtér 3,32 nm,
- nappali 20,77 nm,
- konyha 5,37 nm,
- fürdőszoba 5,19 nm,
- háztart.h 5,11 nm,
- közlekedő 3,74 nm,
- közlekedő 3,93 nm,
- szoba 10,71 nm,
- szoba 10,35 nm,
- szoba 11,82 nm,
- szoba 10,35 nm,
- gardrób 3,86 nm,
- zuhany+WC 4,42 nm,
- terasz 15,98 nm,
- terasz 2,07 nm.


Műszaki paraméterek:

- 30-as Leier falazó blokk,
- 10-es Leier válaszfal tégla,
- 15 cm-es vtg Hungarocell szigetelés,
- műanyag fehér nyílászárók 3 rétegű üvegezés,
- Leier betoncserép,
- műanyag hőszigetelt bejárati ajtó ( fehér) 85.000.-Ft értékben,
- hősszivattyús fűtés, padlófűtéssel,
- hideg- meleg burkolatok 5000 Ft/nm anyag értékben,
- utcafronton beton panel kerítés,
- ház körül betonjárda,
- egyéb kerítések fém oszlop drótfonattal,
- 1x 32 Amper 1 fázis, H tarifás óra,


Várható átadás: 2026 évvége.
A kivitelező referencia munkái megtekinthetőek.

Amivel segítjük az Ön ingatlan vásárlását:
- ingyenes hitelügyintézés (CSOK és Babaváró és egyéb hitel
ügyintézése is)
- jogi háttér,
- földhivatali ügyintézés,
- energetikai tanúsítvány ügyintézése,
- a vevő számára ingyenes az ingatlanközvetítés.
Irodánk 30 éves tapasztalattal áll ügyfelei rendelkezésére!

Várom szíves megkeresését!

Családi ház részletei

Ár: 84 150 000 Ft
Méret: 99 négyzetméter
Azonosító: 11601905
Irodai azonosító: 393054
Cím: Kiskunlacháza
Telek: 502 négyzetméter
Ingatlan állapota: Kitűnő
Jelleg: családi ház
Építőanyag: Tégla
Fűtés jellege: Geotermikus
Fűtés módja: Hőszivattyú
Komfort fokozat: Összkomfort
Kor: Új építésű
Szintek száma: Földszintes
Egész szobák: 5

Egyéb jellemzők

  • Csatorna
  • Garázs
  • Pince
  • Terasz

Térkép


Így keressen családi házat négy egyszerű lépésben. Csupán 2 perc, kötelezettségek nélkül!

Szűkítse a családi házak
listáját
Válassza ki a megfelelő
családi házat
Írjon a hirdetőnek
Várjon a visszahívásra