Eladó családi ház Kiskunlacháza 77 500 000 Ft

Leírás

Családi ház
Kiskunlacháza központja
4 hálószoba-103 nm

Eladó új építésű családi ház Kiskunlacház központjában kedvelt, csendes mellékutcájában, rendezett környezetben!

Főbb jellemzők:
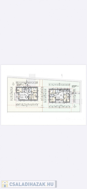
934 nm-es telekre épül két családi ház. Ehhez a házhoz tartozó telek méret 545 nm.
Lakóterület: 103 nm 4 hálószoba+ nappali.
Építés éve: 2025, beton alap, 30 cm-es tégla, főfalak hőszigetelő vakolattal, Bramac Rómaicserép fedés.

Elhelyezkedés: Kiskunlacháza központi, de csendes részén, közel a városi infrastruktúrához.

Elosztás és helykihasználás:103 nm előtér( 6 nm), WC( 2 nm), konyha (6 nm) , háztartási helyiség(5 nm), közlekedő (4 nm), nappali (29), hálószobák ( 10 nm, 12 nm, 12 nm, 13 nm), tereszok ( 16 nm, 2 nm).

Nyílászárók: műanyag szerkezetű ablakok, 3 rétegű üvegezéssel.

Az épület fűtéséről, melegvíz (HMV) ellátásáról, nagy teljesítményű, hőszivattyú gondoskodik, hő leadása, padlón keresztül megoldott.

Kiváló elhelyezkedés és infrastruktúra:

Megközelítés: buszmegálló pár perces sétára, a közelben iskola, óvoda, orvosi rendelő, bevásárlási lehetőségek gyorsan elérhetők.

Az ingatlan irányára: 77,5 M Ft, várom szíves hívását akár hétvégén is.

Családi ház részletei

Ár: 77 500 000 Ft
Méret: 103 négyzetméter
Azonosító: 11573604
Telek: 545 négyzetméter
Ingatlan állapota: Kitűnő
Jelleg: családi ház
Építőanyag: Kérdezzen rá a hirdetőtől »
Fűtés jellege: Egyéb
Komfort fokozat: Összkomfort
Egész szobák: 4
Fél szobák: 1

Egyéb jellemzők

  • Csatorna
  • Garázs
  • Kábel TV
  • Melléképület
  • Parketta
  • Pince
  • Terasz

Így keressen családi házat négy egyszerű lépésben. Csupán 2 perc, kötelezettségek nélkül!

Szűkítse a családi házak
listáját
Válassza ki a megfelelő
családi házat
Írjon a hirdetőnek
Várjon a visszahívásra