Eladó családi ház Királyszentistván 83 600 000 Ft

Leírás

Álmaid otthona Királyszentistváni panorámával – új építésű családi házak elérhető áron!

Királyszentistván legkedveltebb, teljesen csendes zsákutcájában kínálunk most 5 darab új építésű, modern családi házat, ahol a nyugalom és a természet közelsége találkozik a komfortos, modern életstílussal.

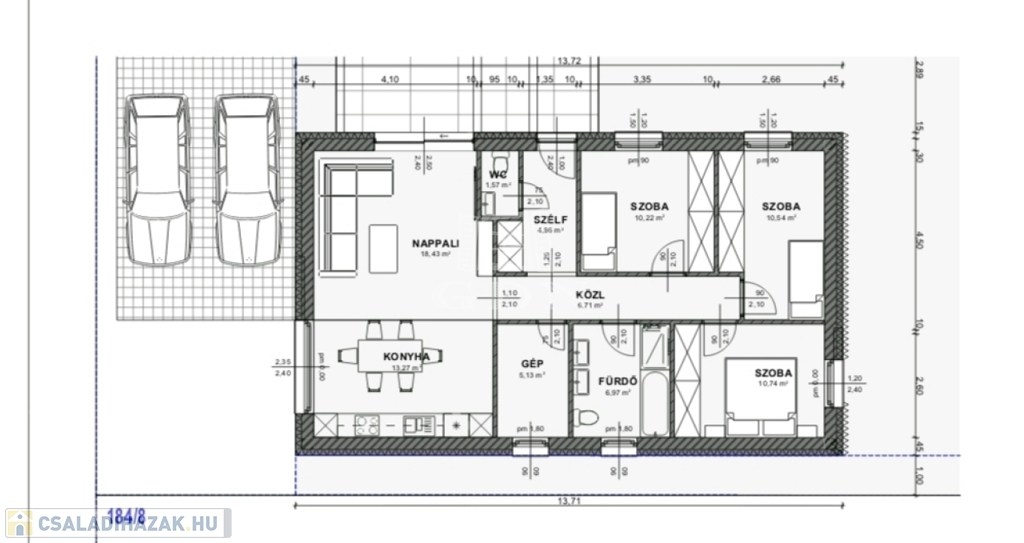
Minden ház 80–90 nm-es, napelemes, padlófűtéssel felszerelt, és a belső tér teljesen a saját igényeid szerint tervezhető. Így lehetőséged van arra, hogy minden ház pontosan úgy alakuljon, ahogyan megálmodtad.

Ár: 1 045 000 Ft/nm
Átadás: 2026 év vége
Környezet: zsákutca, csendes, nyugodt
Különlegesség: panorámás kilátás, világos, modern terek

Ez a lakópark tökéletes választás, ha szeretnél egy csendes, barátságos környezetben élni, de mégis közel a város és a mindennapi szolgáltatások. A házak új építésűek, így energiatakarékosak és hosszú távon is költséghatékonyak.
100 nm-es vagy annál nagyobb ingatlanra egyedi árak és tervek kérhetők.
Az ár tartalmazza az 5 Kw napelem rendszert és az 1 db 3,5 Kw klímát.
Beltéri ajtó 70 000 Ft / DB
Meleg burkolat :8000 Ft/nm
Hideg burkolat: 11 000 Ft/nm


Királyszentistván rendkívül jó lokációjú település, közel a Balatonhoz, Veszprémhez.

Ne hagyd ki a lehetőséget! Tervezd meg álmaid otthonát Királyszentistváni panorámával, és élvezd a békés, nyugodt életet egy modern, fenntartható házban.

Részletes műszaki leírásért, valamint további információkért hívjon bizalommal!

Családi ház részletei

Ár: 83 600 000 Ft
Méret: 80 négyzetméter
Azonosító: 11597347
Irodai azonosító: 392337
Cím: Panorámás, újépítés, tervezhető
Telek: 400 négyzetméter
Ingatlan állapota: Kitűnő
Jelleg: családi ház
Építőanyag: Tégla
Fűtés jellege: Villany
Fűtés módja: Villany
Komfort fokozat: Összkomfort
Kor: Új építésű
Szintek száma: Földszintes
Egész szobák: 3

Egyéb jellemzők

  • Csatorna
  • Garázs
  • Pince
  • Terasz

Térkép


Így keressen családi házat négy egyszerű lépésben. Csupán 2 perc, kötelezettségek nélkül!

Szűkítse a családi házak
listáját
Válassza ki a megfelelő
családi házat
Írjon a hirdetőnek
Várjon a visszahívásra