Eladó családi ház Keszthely 158 000 000 Ft

Leírás

Balatoni településen ELADÓ felújított sorházi lakás Keszthely üdülőövezetében, a Balaton közelében

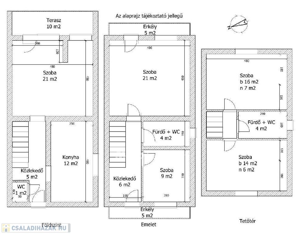
Keszthely egyik kedvelt üdülőövezetében eladó egy hangulatos, 96 m2-es háromszintes sorházi lakás, amely az 1980-as években épült, de az elmúlt években teljes körű felújításon esett át. Az épület téglafalai 10 cm vastag hőszigetelést kaptak, a tetőfedés korszerű cserepeslemezre lett cserélve. A modernizálás részeként minden nyílászáró új, háromrétegű üvegezésű ablakra lett cserélve, továbbá megújult a villamos és fűtésrendszer is.

A ház fűtését fatüzelésű kályha és egy 800 literes puffertartály biztosítja, amely a radiátoros rendszeren keresztül oszlatja el a meleget.

A lakáshoz egy tágas terasz, valamint gondozott, hangulatos, 300 m2-es kertrész tartozik, kerti sütögetővel és tárolóval. Az udvaron két autó számára kialakított kocsibeálló áll rendelkezésre.

Az ingatlan elhelyezkedése ideális: a Balaton partja néhány száz méterre található, a legközelebbi strandok gyalogosan mindössze 10-15 perc alatt megközelíthetők. A környék csendes, mégis közel van a város szolgáltatásaihoz és a tóparti kikapcsolódási lehetőségekhez.

Amennyiben felkeltette érdeklődését és szeretné megtekinteni személyesen is az ingatlant kérem hívjon!

Referencia szám: M316330

Családi ház részletei

Ár: 158 000 000 Ft
Méret: 96 négyzetméter
Azonosító: 11580542
Irodai azonosító: M316330-5088161
Telek: 300 négyzetméter
Ingatlan állapota:
Jelleg: sorház
Építőanyag: Tégla
Fűtés jellege: Egyedi
Komfort fokozat: Dupla komfort
Kor: 21-50 éves
Szintek száma: 2 szint
Egész szobák: 2
Fél szobák: 3

Egyéb jellemzők

  • Garázs

Térkép


Így keressen családi házat négy egyszerű lépésben. Csupán 2 perc, kötelezettségek nélkül!

Szűkítse a családi házak
listáját
Válassza ki a megfelelő
családi házat
Írjon a hirdetőnek
Várjon a visszahívásra