Eladó családi ház Keszthely 134 900 000 Ft

Leírás


Igényes megjelenésű ház a strand közelében! Igényes megjelenésű ház a strand közelében!

A Gold Balaton Home Ingatlaniroda megvételre kínálja a 200 015-as sorszámú KESZTHELYI IKERHÁZI LAKÁST

Igényes megjelenésű ház a Libás strand közelében található!

Nyaralónak is kitűnő választás!

Főfalakig visszabontották a meglévő épületet, és teljesen újjá építik a házat a mostani műszaki követelmények szerint.

A lakás várható átadása 2023. október.

A kettő szintes ikerházi lakás amerikai konyhás nappalival, három szobával, kettő fürdőszobával, terasszal, erkéllyel épült. Kényelmes életteret biztosít Ön és családja számára.

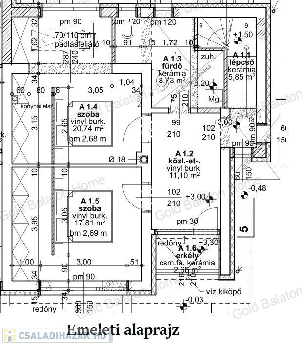
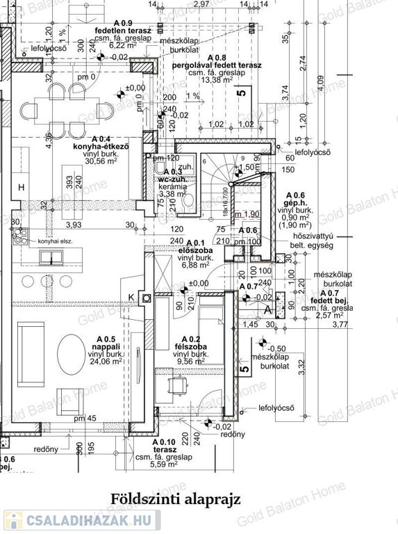
- Földszinti helyiségek: amerikai konyhás nappali 54,6 m2, szoba 9,56, előszoba 6,88 m2,Tusoló-WC 3,38 m2, háztartási helyiség 1,9 m2, lépcső 5,85 m2, bejárat 2,57 m2, teraszok 25,5 m2

- Emeleti helyiségek: szoba 20,74 m2, szoba 17,81 m2, fürdőszoba 8,73 m2, közlekedő 11,1 m2, erkély 2,66 m2

 

Műszaki paraméterek:

- tégla építés, 15 cm-es külső hőszigeteléssel ellátott családi ház

- tető héjazata cserép és lemez fedés

- műanyag nyílászárók három rétegű üvegezéssel

- fűtés hőszivattyús klíma rendszerrel megoldott

- lakótér 140 m2, teraszok 30m2, saját udvar területe 350 m2

 

Az ingatlan egyéb jellemzői:

- rendezett, körbekerített udvar

- térkővel lerakott udvarrész

Strand 400 m-re található.

Amennyiben hirdetésem felkeltette érdeklődését, kérem, keressen bizalommal!

 

Irodánk szolgáltatásai igény esetén: ügyvéd, energetikai tanúsítvány, hitelügyintézés, értékbecslés, statikus, földmérő, belsőépítész. Biztonság, szakértelem - GOLD BALATON HOME - „Élj ott, ahol mások nyaralnak”

Családi ház részletei

Ár: 134 900 000 Ft
Méret: 140 négyzetméter
Azonosító: 11607399
Irodai azonosító: 731200015
Cím: Zámor
Telek: 200 négyzetméter
Ingatlan állapota: Felújított
Jelleg: családi ház
Építőanyag: Tégla
Komfort fokozat: Összkomfort
Egész szobák: 4

Így keressen családi házat négy egyszerű lépésben. Csupán 2 perc, kötelezettségek nélkül!

Szűkítse a családi házak
listáját
Válassza ki a megfelelő
családi házat
Írjon a hirdetőnek
Várjon a visszahívásra