Eladó családi ház Kerepes 65 500 000 Ft

Leírás

Panoráma. Kert. Terasz.

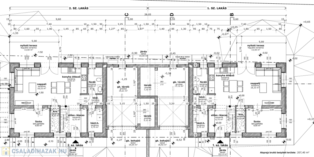
Eladó Kerepes legszebb részén, a Panoráma lakóparkban egy 134 m²-es, félig kész ikerházfél 390 m² saját telekkel és 13 m² terasszal – most bevezető áron: 65,5 millió Ft-ért.(Az ár a jelenlegi, befejezés előtti állapotra vonatkozik.) A közcsatornázás 2027 eleji moratóriumfeloldásig fúrt kúttal és szikkasztóval megoldott, így a mindennapi használat biztosított. Az ikerházfél akár egyben is megvásárolható a másik féllel!

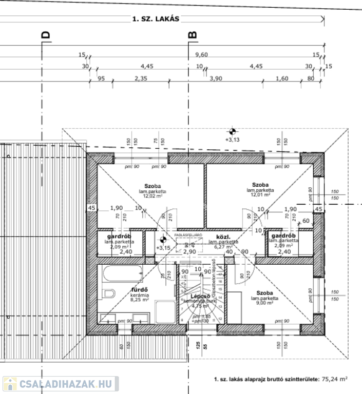
A nettó 108 m²-es lakótérhez garázs, tároló és padlás tartozik. Az alsó szinten amerikai konyhás nappali, teraszkapcsolat és vendégszoba, az emeleten három külön nyíló szoba és tágas fürdő kapott helyet. A telekről lenyűgöző örökpanoráma nyílik, a környék csendes, mégis könnyen elérhető Budapest.

Ritka lehetőség: saját igényeid szerint fejezheted be, miközben már most értéket képvisel – CSOK és államilag támogatott hitel is igénybe vehető.

Családi ház részletei

Ár: 65 500 000 Ft
Méret: 108 négyzetméter
Azonosító: 11575239
Irodai azonosító: 388995
Cím: Panoráma lakópark
Telek: 750 négyzetméter
Ingatlan állapota: Épülő
Jelleg: ikerház
Építőanyag: Tégla
Fűtés jellege: Egyéb
Kor: 1-5 éves
Szintek száma: 1 szint
Egész szobák: 4

Egyéb jellemzők

  • Csatorna
  • Garázs
  • Pince
  • Terasz

Térkép


Így keressen családi házat négy egyszerű lépésben. Csupán 2 perc, kötelezettségek nélkül!

Szűkítse a családi házak
listáját
Válassza ki a megfelelő
családi házat
Írjon a hirdetőnek
Várjon a visszahívásra