Eladó családi ház Kerepes 63 000 000 Ft

Leírás

Eladásra kínálok BUDAPEST AGGLOMERÁCIÓJÁBAN EGY IKERHÁZAT!
Az ikerházfél szerkezetkész állapotban van, és akár egyben is megvásárolható a másik féllel!
A kulcsrakész állapotban történő átadás szintén megvalósítható!

Az autópálya lehajtótól délre elhelyezkedő keleti és déli tájolású ikerház, gyorsan és könnyedén megközelíthető. Az ingatlant aszfaltozott útról lehajtva rövid murvázott utcaszakaszon át közelíthetjük meg.
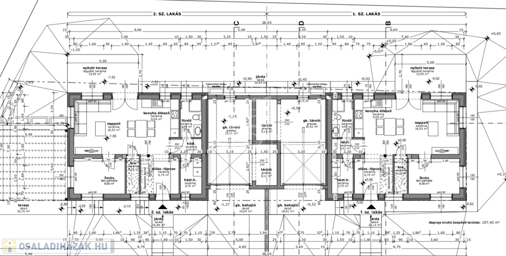
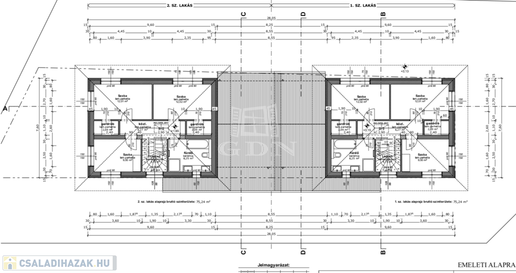
Felosztás:A földszinten az amerikai konyhás, teraszkapcsolatos nappalin kívül nemcsak kiszolgáló helyiségeket, hanem egy vendégszobát is találunk. A kényelmes lépcsőn az emeletre jutunk, ahol három szoba, tágas fürdőszoba kapott helyet.
Kiváló raktározási lehetőséget kínál garázs és annak padlás része.
A dél-keleti tájolású 13,5 nm-es teraszról, különleges formájú és fekvésű kert teszi még teljesebbé az ingatlan kényelmét és családi ház jellegű hangulatát , kihasználhatóságát.

Műszaki ismertető:
Az ikerház elhelyezkedése a közel 751 nm-es telken 5 m előkert betartásával épült, az utcaszinttől kissé feljebb, mégis kényelmes gépkocsi behajtást biztosítva a garázshoz. Az épület klasszikus és jól bevált építési móddal, szigetelt beton sávalapra, 30-as Porotherm téglafalazattal épült, a lakószinteket elválasztó betongerendás, kerámia béléstesttel kitöltött födémmel. A zárószinten fagerendás födém, mely 30 cm szálas hőszigetelést kapott. A mediterrán hajlásszögű tető cserépfedéssel zárul. A mai energetikai elvárásoknak megfelelve 15 cm homlokzatszigeteléssel és 3 rétegű thermo üvegezésű, korszerű műanyag-fém szerkezetű nyílászárókkal kerül teljes értékűen kivitelezésre. Az ikerház fűtését hőszivattyús rendszerrel biztosítja, ami a használati melegvíz előállítását is végzi.

A vevő ízléséhez és igényeihez igazodva a külső belső nyílászárók, hideg és meleg burkolatok választhatóak. A kert tereprendezés után, füvesítésre alkalmas állapotban kerül átadásra.

Hívjon bizalommal, tekintsük meg együtt!

Családi ház részletei

Ár: 63 000 000 Ft
Méret: 108 négyzetméter
Azonosító: 11553413
Irodai azonosító: 385426
Cím: Panoráma dűlő
Telek: 751 négyzetméter
Ingatlan állapota: Épülő
Jelleg: ikerház
Építőanyag: Tégla
Fűtés jellege: Geotermikus
Fűtés módja: Hőszivattyú
Komfort fokozat: Összkomfort
Kor: Új építésű
Szintek száma: 1 szint
Egész szobák: 5

Egyéb jellemzők

  • Csatorna
  • Garázs
  • Pince
  • Terasz

Térkép


Így keressen családi házat négy egyszerű lépésben. Csupán 2 perc, kötelezettségek nélkül!

Szűkítse a családi házak
listáját
Válassza ki a megfelelő
családi házat
Írjon a hirdetőnek
Várjon a visszahívásra