Eladó családi ház Kerepes 108 900 000 Ft

Leírás

Eladásra kínálok Kerepes kertvárosi részén, csendes, csodás kilátással rendelkező helyen, egy ikerház felet.
A saját kertrész 300 nm.
HŐSZIVATTYÚS fűtés, padlófűtéssel!
3 szinten elhelyezkedő TÉGLA épület, CSERÉP fedéssel!
Modern 3 rétegű nyílászárók!
Kulcsrakész állapot az árban, KERÍTÉSSEL és TÉRBURKOLATOKKAL!

Felosztása:

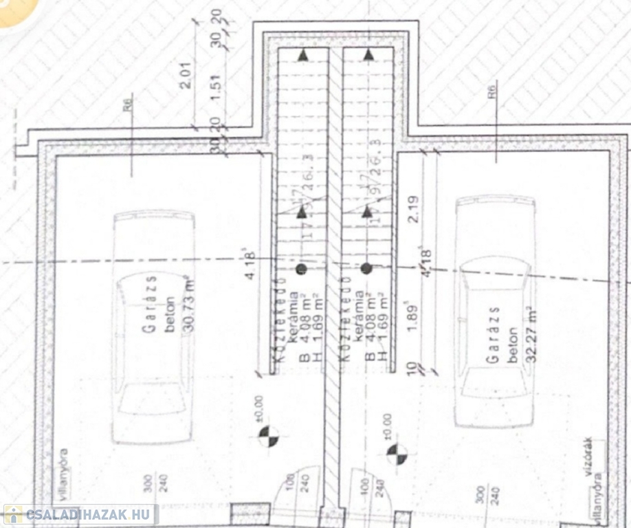
Garázs: 32.27 nm

Földszint:
Amerikai konyhás nappali:35 nm.
Szoba:14,2 nm.
Fürdőszoba: 7 nm.
Terasz 30 nm.

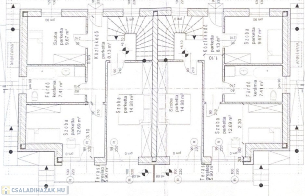
Felső szint:
Szoba: 14,09 nm.
Szoba: 13 nm
Szoba:9,67 m
Fürdőszoba: 7 nm
Terasz 6 nm

CSOK és egyéb hitellehetőségekre alkalmas ingatlan!

Hívjon bizalommal és költözzön még idén az új otthonába!

Családi ház részletei

Ár: 108 900 000 Ft
Méret: 133 négyzetméter
Azonosító: 11561769
Irodai azonosító: 386774
Cím: Madarász János utca
Telek: 551 négyzetméter
Ingatlan állapota: Kitűnő
Jelleg: ikerház
Építőanyag: Tégla
Fűtés jellege: Geotermikus
Fűtés módja: Hőszivattyú
Komfort fokozat: Összkomfort
Kor: Új építésű
Szintek száma: 2 szint
Egész szobák: 5

Egyéb jellemzők

  • Csatorna
  • Garázs
  • Pince
  • Terasz

Térkép


Így keressen családi házat négy egyszerű lépésben. Csupán 2 perc, kötelezettségek nélkül!

Szűkítse a családi házak
listáját
Válassza ki a megfelelő
családi házat
Írjon a hirdetőnek
Várjon a visszahívásra