Eladó családi ház Kecskemét 89 900 000 Ft

Leírás

Építkezzen Kecskemét vonzáskörzetében a közkedvelt Helvécián!
ELADÓ egy új építésű családi ház aszfaltozott út mellett lévő 620 m2-es önállósarki telken.
Jellemzői:
- Várható átadás: 2026. október
- Telek mérete: 620 m2
- Összközműves
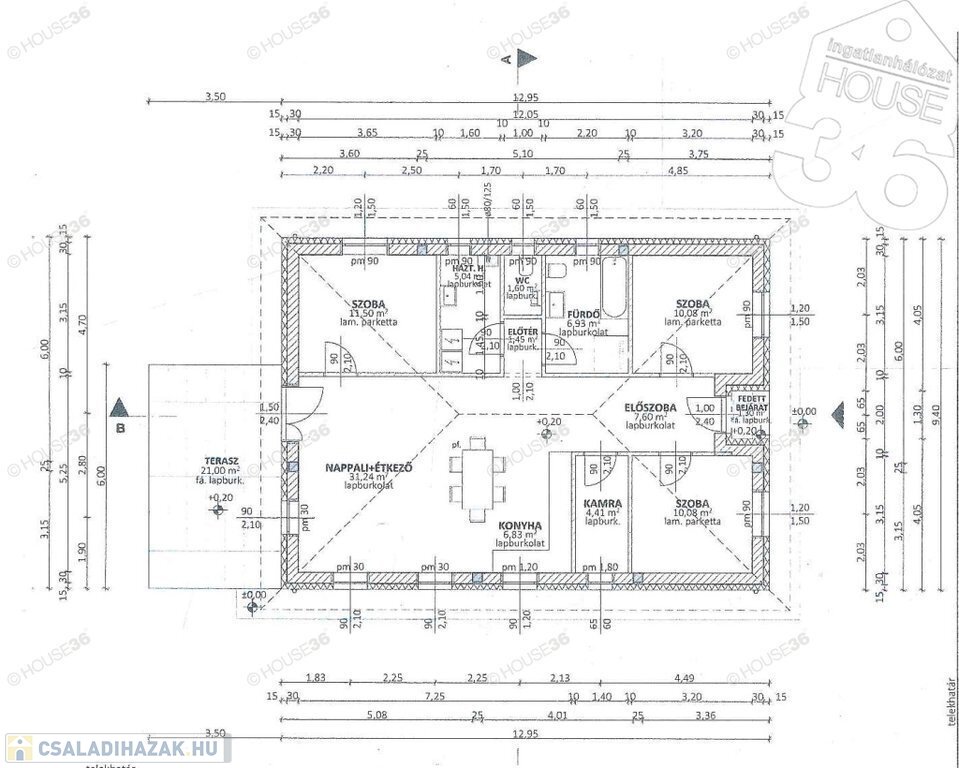
- Lakótér: 96,76 m2
- Terasz: 21 m2
- Helyiségek: Nappali-étkező-konyha + 3 szoba, kamra, fürdőszoba, külön mosdó, háztartási helyiség
- Tégla építésű (+ tégla válaszfalak)
- Külső nyílászárók: fehér műanyag ablakok redőnnyel
- Bejárat ajtó: fehér műanyag hőszigetelt
- Beltéri ajtók (választható): 80.000,-/db
- Fűtés: padlófűtés
- Burkolatok: hideg -és meleg (választható): 9.000,-/m2
- Egyéb extrák: - 2,5 kW napelem
- 3,5 kW-os hűtő-fűtő klíma
- Kerítés
- Választható: fedett gépkocsi beálló v. garázs (az ár nem tartalmazza!)


Figyelem az adatlap megbízónktól kapott adatok alapján készült, pontosságáért felelősséget nem tudunk vállalni!
Szolgáltatásaink Kereső ügyfeleink számára INGYENESEK! Amennyiben eladó-kiadó ingatlana van vagy finanszírozási megoldást keres, hívjon, megtaláljuk a legjobb lehetőséget Önnek! A HOUSE36 kínálatában található összes ingatlannal kapcsolatban tudok felvilágosítást nyújtani!
Hívjon bizalommal!
Az iroda legfrissebb, aktuális kínálatát a HOUSE36 saját weboldalán találja!

Családi ház részletei

Ár: 89 900 000 Ft
Méret: 96 négyzetméter
Azonosító: 11611872
Irodai azonosító: 3621141-5142672
Telek: 620 négyzetméter
Ingatlan állapota: Épülő
Jelleg: családi ház
Építőanyag: Tégla
Fűtés jellege: Cirkó
Fűtés módja: Gáz
Kor: Új építésű
Szintek száma: Földszintes
Egész szobák: 4

Térkép


Így keressen családi házat négy egyszerű lépésben. Csupán 2 perc, kötelezettségek nélkül!

Szűkítse a családi házak
listáját
Válassza ki a megfelelő
családi házat
Írjon a hirdetőnek
Várjon a visszahívásra