Eladó családi ház Kecskemét 89 900 000 Ft

Leírás

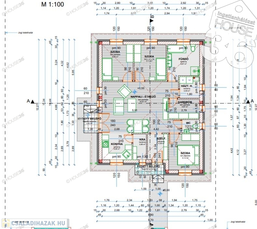
Kecskemét vonzáskörzetében Helvécián, Nappali + 3 szobás, új családi ház, 836 m2-es telken eladó!

Jellemzői:

nettó 85 m2
az ár a kulcsrakész állapotra vonatkozik
tégla építési mód
nappali + 3 szoba
836 m2 telek
idei átadás
padlófűtés BOSCH 2300 kazánnal
klíma
Az iroda legfrissebb, aktuális kínálatát a HOUSE36 saját weboldalán találja!

Családi ház részletei

Ár: 89 900 000 Ft
Méret: 85 négyzetméter
Azonosító: 11563947
Irodai azonosító: 3620430-5031212
Telek: 836 négyzetméter
Ingatlan állapota: Épülő
Jelleg: családi ház
Építőanyag: Tégla
Fűtés jellege: Cirkó
Fűtés módja: Gáz
Kor: Új építésű
Szintek száma: Földszintes
Egész szobák: 4

Térkép


Így keressen családi házat négy egyszerű lépésben. Csupán 2 perc, kötelezettségek nélkül!

Szűkítse a családi házak
listáját
Válassza ki a megfelelő
családi házat
Írjon a hirdetőnek
Várjon a visszahívásra