Eladó családi ház Kecskemét 86 500 000 Ft

Leírás

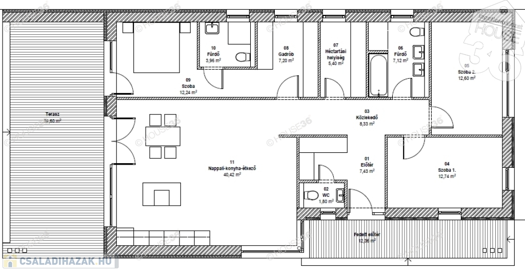
Eladó ÚJ nappali + 3 szobás 119,24 m2-es családi ház 39,6+12,36 m2-es terasszal!

Jellemzők:

- Porotherm NF 38-as tégla
- 10 cm-es homlokzati- és 30 cm födémszigetelés
- 3 rétegű üveg, fehér műanyag ablakok 6 légkamrás fokozott hőszigetelésű profilból, szúnyoghálóval, redőnnyel
- fűtés és melegvíz-ellátás korszerű kondenzációs 24 KW-os kondenzációs gáztüzelésű kazánnal és padlófűtéssel
- fehér műanyag hőszigetelet bejárati ajtó választható kivitelben
- CPL fóliás teli beltéri ajtók kilinccsel (nettó 85 ezer forint értékben)
- hidegburkolat: nettó 5500 huf/m2-ig az árban 2,1 méter magasságban
- melegburkolat: vízálló laminált padló nettó 4500 huf/m2-ig az árban
- 2 db 3,5 KW-os klíma
- riasztó előkészítés
- 80(!) db elektromos kiállás
- A++ energetika
- ÉPÍTÉSI IDŐ 8 HÓNAP

Figyelem! Az adatlap megbízónktól kapott információk alapján készült, pontosságáért felelősséget nem tudunk vállalni! Amennyiben a hirdetés felkeltette érdeklődését, illetve eladó ingatlana van, forduljon hozzám bizalommal!
Az iroda legfrissebb, aktuális kínálatát a HOUSE36 saját weboldalán találja!

Családi ház részletei

Ár: 86 500 000 Ft
Méret: 119 négyzetméter
Azonosító: 11556832
Irodai azonosító: 3620295-5007790
Telek: 550 négyzetméter
Ingatlan állapota: Épülő
Jelleg: családi ház
Építőanyag: Tégla
Fűtés jellege: Cirkó
Fűtés módja: Gáz
Kor: Új építésű
Szintek száma: Földszintes
Egész szobák: 4

Térkép


Így keressen családi házat négy egyszerű lépésben. Csupán 2 perc, kötelezettségek nélkül!

Szűkítse a családi házak
listáját
Válassza ki a megfelelő
családi házat
Írjon a hirdetőnek
Várjon a visszahívásra