Eladó családi ház Kecskemét 82 990 000 Ft

Leírás

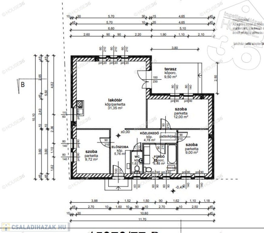
81 m2-es, nappali + 3 szobás, új építésű ház Kecskemét - Katonatelepen!
Az ár tartalmazza a telek árát is!

Jellemzői:


telek 500 m2
lakótér 81 m2
10 m2 térkövezett terasz
gáz-cirkó fűtés, Bosch 2300 kazánnal, padlófűtés
3 BOSCH klíma
Porotherm főfalak
10 cm-es tégla válaszfalak (belső)
Fa födémszerkezet láng és gombamentesítő anyaggal kezelve
Cserép tetőfedés
Műanyag, bukó-nyíló nyílászárók (3 rétegű, 6 légkamrás), biztonsági bejárati ajtó
redőny, szúnyogháló
15 cm EPS homlokzati hőszigetelés
Azonnal költözhető!


A tulajdonos kérésére az ingatlan bemutatása egy személyes konzultáció után történik, ahol részletes tájékoztatást kaphat az ingatlan paramétereiről és egyéb kényelmi szolgáltatásairól! Figyelem az adatlap megbízónktól kapott adatok alapján készült, pontosságáért felelősséget nem tudunk vállalni!

Családi ház részletei

Ár: 82 990 000 Ft
Méret: 81 négyzetméter
Azonosító: 11571506
Irodai azonosító: 3620625-5056728
Telek: 506 négyzetméter
Ingatlan állapota: Épülő
Jelleg: családi ház
Építőanyag: Tégla
Fűtés jellege: Cirkó
Fűtés módja: Gáz
Kor: Új építésű
Szintek száma: Földszintes
Egész szobák: 4

Térkép


Így keressen családi házat négy egyszerű lépésben. Csupán 2 perc, kötelezettségek nélkül!

Szűkítse a családi házak
listáját
Válassza ki a megfelelő
családi házat
Írjon a hirdetőnek
Várjon a visszahívásra