Eladó családi ház Kecskemét 81 500 000 Ft

Leírás

Otthonok és megoldások!
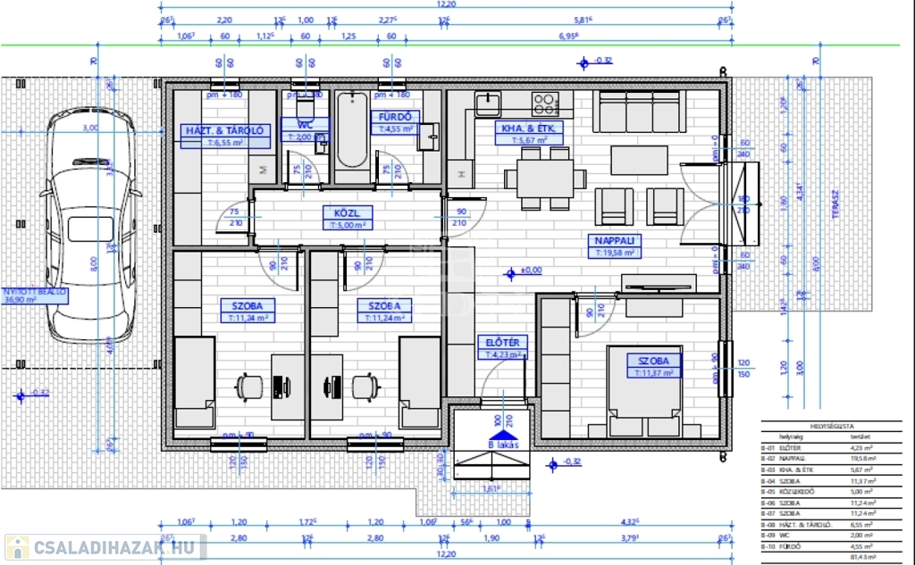
Kecskemét Felsőszéktó területén, új építésű, 81 nm téglaépület, amerikai konyhás nappali + 1 szobás, klímás, fedett gépkocsibeállóval eladó. Ideális választás idősebb korosztálynak, vagy fiataloknak, akik nem szeretnének nagy kertet gondozni. Kivitelezésben szerződött partnerünk a mai kornak és igényeknek megfelelő, energia hatékony építő anyagokkal építi fel, vállalt határidőre otthonát. A fotók referencia munkáról készültek.
További részletekért, műszaki leírásért, a terület megtekintéséért várom hívását!

Családi ház részletei

Ár: 81 500 000 Ft
Méret: 81 négyzetméter
Azonosító: 11603616
Irodai azonosító: 393231
Cím: Felsőszéktó
Telek: 500 négyzetméter
Ingatlan állapota: Kitűnő
Jelleg: családi ház
Építőanyag: Tégla
Fűtés jellege: Geotermikus
Fűtés módja: Hőszivattyú
Komfort fokozat: Összkomfort
Kor: Új építésű
Szintek száma: Földszintes
Egész szobák: 2

Egyéb jellemzők

  • Csatorna
  • Garázs
  • Pince
  • Terasz

Térkép


Így keressen családi házat négy egyszerű lépésben. Csupán 2 perc, kötelezettségek nélkül!

Szűkítse a családi házak
listáját
Válassza ki a megfelelő
családi házat
Írjon a hirdetőnek
Várjon a visszahívásra