Eladó családi ház Kecskemét 80 000 000 Ft

Leírás

​​Kecskeméten az egész család számára tökéletes kényelmet biztosító, remek elrendezésű, új építésű családi ház csak önre vár.


A 4 szoba minden családtagnak biztosít egy kis elvonulási lehetőséget.
A kényelmes, tágas nappaliból a fedett teraszra léphet ki.
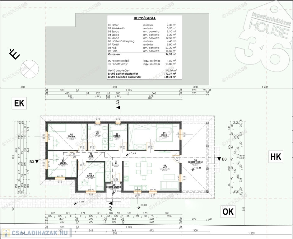
- 96,9 m2 nettó lakóté
- 1,6 m2 fedett belépő
- 24,4 m2 fedett terasz
- 138,78 m2 bruttó
- 575 m2 telek

- garázs
- hőszivattyú
- padlófűtés
- 4 szoba
- nagy nappali konyhával,étkezővel
- háztartási helyiség
- plusz külön wc
- energia takarékos
- 2026 .07 átadás

Választható burkolatok, színek, nyílászárók, szaniterek.
Hívjon.Nézzük meg a minta házakat akár hétvégén is.
A HOUSE36 kínálatában lévő összes ingatlannal kapcsolatban tudok felvilágosítást nyújtani.
Szolgáltatásaink kereső ügyfeleink részére ingyenesek.
Az iroda legfrissebb, aktuális kínálatát a HOUSE36 saját weboldalán találja!

Családi ház részletei

Ár: 80 000 000 Ft
Méret: 96 négyzetméter
Azonosító: 11574144
Irodai azonosító: 3620454-5068021
Telek: 575 négyzetméter
Ingatlan állapota: Épülő
Jelleg: családi ház
Építőanyag: Könnyűszerkezetes
Fűtés jellege: Villany
Fűtés módja: Hőszivattyú
Kor: Új építésű
Szintek száma: Földszintes
Egész szobák: 4

Egyéb jellemzők

  • Garázs

Térkép


Így keressen családi házat négy egyszerű lépésben. Csupán 2 perc, kötelezettségek nélkül!

Szűkítse a családi házak
listáját
Válassza ki a megfelelő
családi házat
Írjon a hirdetőnek
Várjon a visszahívásra