Eladó családi ház Kecskemét 79 000 000 Ft

Leírás

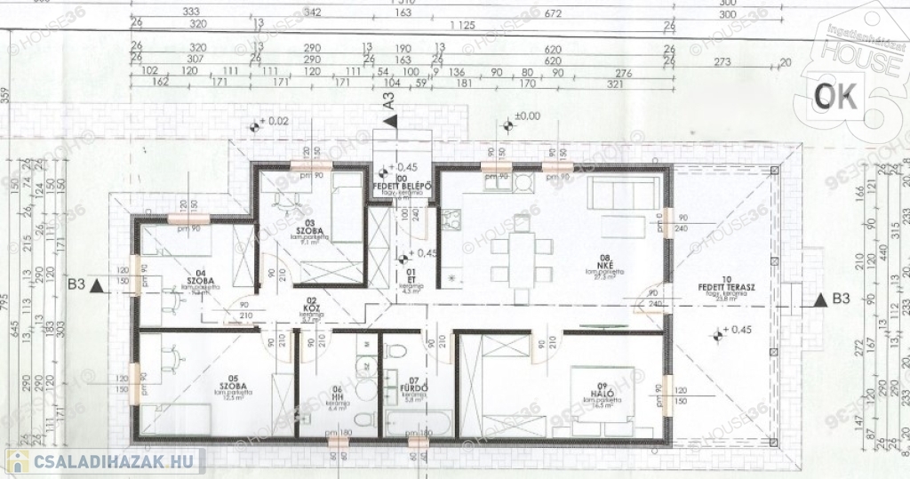
Kecskemét gyönyörű új lakóparkjában, legyen ön az első lakó, egy minden igényt kielégítő családi házban.

Csok plusz-ra, 3% hitelre is alkalmas.
- 4 szoba
- nagy nappali étkezővel
- hőszivattyú
- padlófűtés
- 113,31 bruttó m2 ház
- nettó 94,6
- 477 m2 telek
- 24 m2 fedett terasz
- 2026 januári átadással
- választható szaniterek, nyílászárók, színek, burkolatok.

​Keresse értékesítőinket. Nézzük meg. Igazán csak úgy lehet beleszeretni.
Akár hétvégén is megmutatom.

Figyelem az adatlap megbízónktól kapott adatok alapján készült, pontosságáért felelősséget vállalni nem tudunk.
Az iroda legfrissebb, aktuális kínálatát a HOUSE36 saját weboldalán találja!

Családi ház részletei

Ár: 79 000 000 Ft
Méret: 94 négyzetméter
Azonosító: 11574573
Irodai azonosító: 3619311-5069065
Telek: 477 négyzetméter
Ingatlan állapota: Épülő
Jelleg: családi ház
Építőanyag: Könnyűszerkezetes
Fűtés jellege: Egyéb
Kor: Új építésű
Szintek száma: Földszintes
Egész szobák: 4

Térkép


Így keressen családi házat négy egyszerű lépésben. Csupán 2 perc, kötelezettségek nélkül!

Szűkítse a családi házak
listáját
Válassza ki a megfelelő
családi házat
Írjon a hirdetőnek
Várjon a visszahívásra