Eladó családi ház Kecskemét 69 900 000 Ft

Leírás

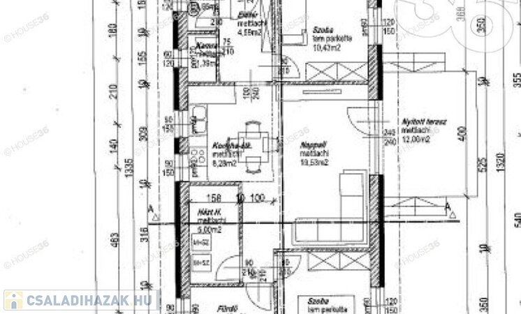
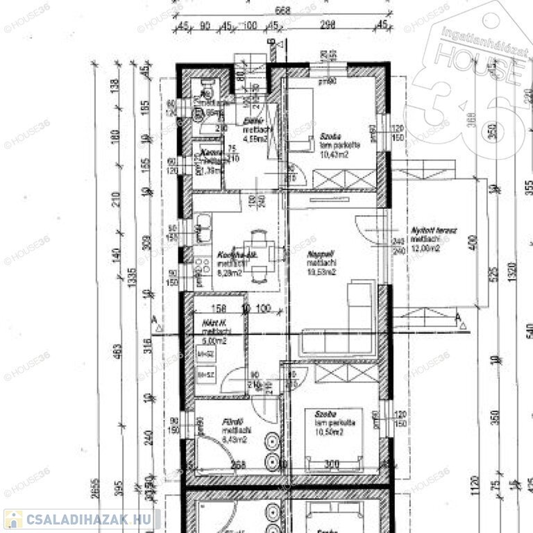
Kecskeméttől 3 percre nappali + 2 szobás, 68 m2-es ikerház egyik fele eladó!

Jellemzői:


tégla építés
320 m2 telek
68 m2
nappali + 2 szoba
háztartási helyiség
3 db klíma
Padlófűtés Bosch 2300 kazánnal
15 cm homlokzati szigetelés
30 cm födém szigetelés
Választható burkolatok, szaniterek
Műanyag nyílászárók redőnnyel


A tulajdonos kérésére az ingatlan bemutatása egy személyes konzultáció után történik, ahol részletes tájékoztatást kaphat az ingatlan paramétereiről és egyéb kényelmi szolgáltatásairól!Figyelem az adatlap megbízónktól kapott adatok alapján készült, pontosságáért felelősséget nem tudunk vállalni!

69900000 Ft
Az iroda legfrissebb, aktuális kínálatát a HOUSE36 saját weboldalán találja.

Referencia szám: 3621378

Családi ház részletei

Ár: 69 900 000 Ft
Méret: 68 négyzetméter
Azonosító: 11612714
Irodai azonosító: 3621378-5182337
Telek: 320 négyzetméter
Ingatlan állapota: Épülő
Jelleg: ikerház
Építőanyag: Tégla
Fűtés jellege: Cirkó
Fűtés módja: Gáz
Kor: Új építésű
Szintek száma: Földszintes
Egész szobák: 3

Térkép


Így keressen családi házat négy egyszerű lépésben. Csupán 2 perc, kötelezettségek nélkül!

Szűkítse a családi házak
listáját
Válassza ki a megfelelő
családi házat
Írjon a hirdetőnek
Várjon a visszahívásra