Eladó családi ház Kecskemét 48 900 000 Ft

Leírás

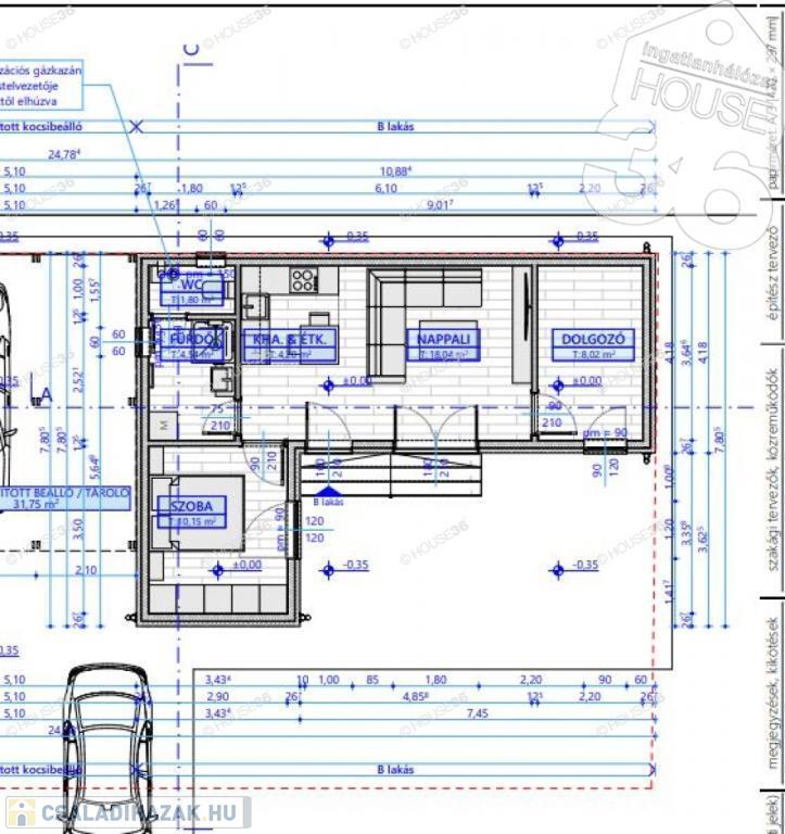
Új építésű 47 m2 es, nappali + 2 szobás ikerház eladó Kecskemét vonzáskörzetében!

Jellemzői:


2026szeptemberi átadás
nappali + 2szoba
47 m2
könnyűszerkezetes építés
bioderítő
2 db klíma
fedett gépkocsi beálló
810 m2 telek
burkolat választható
10 cm-es szigetelés, 20 cm födémszigetelés
Az iroda legfrissebb, aktuális kínálatát a HOUSE36 saját weboldalán találja!

Családi ház részletei

Ár: 48 900 000 Ft
Méret: 47 négyzetméter
Azonosító: 11579473
Irodai azonosító: 3620803-5084422
Telek: 810 négyzetméter
Ingatlan állapota: Épülő
Jelleg: ikerház
Építőanyag: Könnyűszerkezetes
Fűtés jellege: Egyéb
Komfort fokozat: Összkomfort
Kor: Új építésű
Szintek száma: Földszintes
Egész szobák: 3

Térkép


Így keressen családi házat négy egyszerű lépésben. Csupán 2 perc, kötelezettségek nélkül!

Szűkítse a családi házak
listáját
Válassza ki a megfelelő
családi házat
Írjon a hirdetőnek
Várjon a visszahívásra