Eladó családi ház Kecskemét 269 000 000 Ft

Leírás

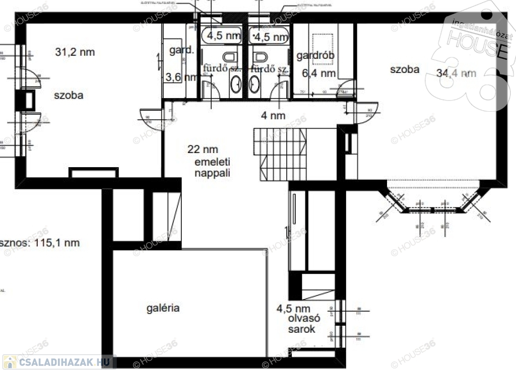
Kecskemét egyik legkedveltebb és legjobb zsákutcájában, ami a Vacsiközben található, 600 m2-es telken, 3 szinten 293 m2-es, 5 szobás + 5 fürdőszobás + 3 gardróbos, nagy terekkel-és kialakításokkal, belsőépítész által álmodott-és újra gondolt luxus családi ház számtalan extrákkal eladó! Minden szoba lakosztály, saját gardróbbal, fürdővel. A ház még nincs teljesen kész, az udvar, a medencetér és a vendégház még befejezésre vár. Mindenképp látni kell!

Tudnivalók:

-tégla építés, 15 cm-es homlokzati szigeteléssel
-monolit vasbeton födém
-új vezetékelések, burkolatok, szaniterek
-műanyag-és fa nyílászárók
-óriás terek (konyha/nappali/étkező közel 80 m2)
-108 m2-es pinceszint, tárolókkal, gépészeti helységgel, dupla garázzsal, szabadidő szobával
-hőszivattyú, zárt égésterű gázcirkó fűtés, padlófűtés
-kandalló (Szabó kandalló)
-burkolt beltéri medence (terasz-és nappali felé) még befejezésre vár, hozzá zuhanyzó-és wc
-minőségi burkolatok, szaniterek (Valentino burkolatok, Hansgrohe csaptelepek stb.)
-kb.30 m2-es galériázott vendégház (szoba/konyha/fürdő)
-óriás egyedi konyhabútor, rejtett spájzzal, tele tárolókkal, munkapulttal
-NEFF típusú konyhai gépek, dupla hűtő
-igény-és megegyezés szerint akár bútorozva (olasz egyedi bútorok, kézzel csiszolt egyedi impozáns csillár, egyedi függönyök)
-terasz 40 m2
-elektromos redőny kiállás
-riasztó-és kamerarendszer
-em.-i galériás nappali, olvasó sarok

Opcionálisan még kialakíthatóak fsz.-en és em.-en is további szobák!

​Az adatok tájékoztató jellegűek!

FIGYELEM! Az adatok Megbízónktól kapott adatok alapján készült, pontosságáért felelősséget nem tudunk vállalni!
Az iroda legfrissebb, aktuális kínálatát a HOUSE36 saját weboldalán találja!

Családi ház részletei

Ár: 269 000 000 Ft
Méret: 293 négyzetméter
Azonosító: 11588979
Irodai azonosító: 3620882-5097099
Telek: 600 négyzetméter
Ingatlan állapota: Kitűnő
Jelleg: családi ház
Építőanyag: Tégla
Fűtés jellege: Cirkó
Fűtés módja: Gáz
Kor: 21-50 éves
Szintek száma: Földszintes
Egész szobák: 5

Térkép


Így keressen családi házat négy egyszerű lépésben. Csupán 2 perc, kötelezettségek nélkül!

Szűkítse a családi házak
listáját
Válassza ki a megfelelő
családi házat
Írjon a hirdetőnek
Várjon a visszahívásra