Eladó családi ház Kecskemét 161 100 000 Ft

Leírás

Petőfiváros újépítésű részén minimál stílusú ikerház eladó telekkel együtt!

Kecskemét kedvelt helyén a Petőfivárosban eladó újépítésű minimál stílusú ikervilla betonos utcában, csak új házak között.
Az összközműves, 900 m2-es telekre 2 db prémium minőségű, 2 szintes ikerházat terveztek 450m2 telekhányaddal.
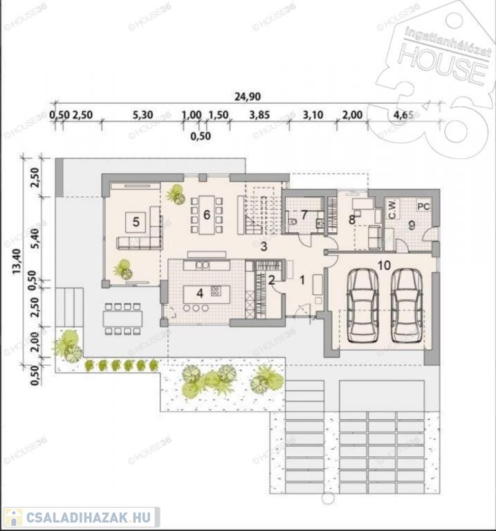
Nappali + 3 szoba, 122 m2, dupla fürdő, 18 m2 garázs + 18 m2 beálló.

Egyéb paraméterek:

Wienerberger Porotherm X-Therm tégla (+ 40 % hőtartás)
450 m2 -es összközműves telek
hőszivattyús fűtésrendszer
padlófűtés
prémium minőségű műanyag nyílászárók
szaniterek 1 millió forintig az árban
hideg - meleg burkolatok 8500.-/ m2
ár garancia
idő garancia
várható átadás szerződéskötéstől számított 10-12 hónap


AZ ÁR AZ ÉPÍTÉSI TELEK ÁRÁT IS TARTALMAZZA!

Az ingatlant több mint 20 éves szakmai tapasztalattal rendelkező építőipari generálkivitelező cég végzi.
A terv az igényekhez mérten módosítható az alaprajz és a műszaki tartalom tekintetében is.



RÉGI MEGY, ÚJ JÖN? KERESSEN BIZALOMMAL!! SEGÍTEK MEGOLDANI!!

Figyelem, az adatlap megbízóinktól kapott adatok alapján készültek, pontosságáért felelősséget nem tudunk vállalni!
A HOUSE36 kínálatában található összes ingatlannal kapcsolatban tudok felvilágosítást nyújtani.
Szolgáltatásaink ügyfeleink részére díjmentesek!
Az iroda legfrissebb, aktuális kínálatát a HOUSE36 saját weboldalán találja!

Családi ház részletei

Ár: 161 100 000 Ft
Méret: 122 négyzetméter
Azonosító: 11607226
Irodai azonosító: 3617575-5004026
Telek: 450 négyzetméter
Ingatlan állapota: Épülő
Jelleg: ikerház
Építőanyag: Tégla
Fűtés jellege: Villany
Fűtés módja: Hőszivattyú
Kor: Új építésű
Szintek száma: Földszintes
Egész szobák: 5

Egyéb jellemzők

  • Garázs

Térkép


Így keressen családi házat négy egyszerű lépésben. Csupán 2 perc, kötelezettségek nélkül!

Szűkítse a családi házak
listáját
Válassza ki a megfelelő
családi házat
Írjon a hirdetőnek
Várjon a visszahívásra