Eladó családi ház Kecskemét 129 900 000 Ft

Leírás

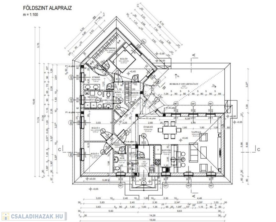
Kecskemét csendes, nyugodt részén eladó egy nettó 126 m²-es, nappali + 3 szobás, modern kialakítású új építésű családi ház, hatalmas, 3001 m²-es önálló telken!
Ez az otthon ideális választás mindazok számára, akik tágas életteret, korszerű műszaki tartalmat és nagy kertet keresnek – akár családalapításhoz, akár nyugodt vidéki élethez.
Főbb jellemzők
✔ 126 m² lakótér
✔ Nappali + 3 külön nyíló szoba
✔ 45 m²-es, világos, amerikai konyhás nappali
✔ 2 fürdőszoba
✔ 2 gardrób
✔ 36 m²-es terasz
✔ 3001 m²-es, önálló telek
✔ 2026 év eleji átadás
Műszaki tartalom
Bosch kazán padlófűtéssel
2 db klíma
15 cm homlokzati szigetelés
30 cm födémszigetelés
Műanyag nyílászárók redőnnyel és szúnyoghálóval
Teljesen körbekerített telek
A korszerű szigetelésnek és a modern gépészetnek köszönhetően az ingatlan energiatakarékos, fenntartási költsége kedvező.
Telek és környezet
A 3001 m²-es telek rengeteg lehetőséget kínál:
medence, játszótér vagy kerti konyha kialakítására
melléképület, műhely vagy garázs építésére
akár gazdálkodásra, kertészkedésre is
A körbekerített terület biztonságos, gyermekes családok és kisállattartók számára is ideális.
Kinek ajánljuk?
Többgyermekes családoknak
Nyugodt, tágas életteret keresőknek
Befektetőknek értékálló új építésű ingatlanként
Ha egy modern, jól átgondolt elrendezésű, nagy telken fekvő új otthont keres Kecskeméten, ezt az ingatlant érdemes megnéznie!
További információért és megtekintésért keressen bizalommal!

Családi ház részletei

Ár: 129 900 000 Ft
Méret: 126 négyzetméter
Azonosító: 11601854
Irodai azonosító: 392977
Cím: Miklóstelepi út
Telek: 3000 négyzetméter
Ingatlan állapota: Kitűnő
Jelleg: családi ház
Építőanyag: Tégla
Fűtés jellege: Cirkó
Fűtés módja: Gáz
Komfort fokozat: Dupla komfort
Kor: Új építésű
Szintek száma: Földszintes
Egész szobák: 4

Egyéb jellemzők

  • Csatorna
  • Garázs
  • Pince
  • Terasz

Térkép


Így keressen családi házat négy egyszerű lépésben. Csupán 2 perc, kötelezettségek nélkül!

Szűkítse a családi házak
listáját
Válassza ki a megfelelő
családi házat
Írjon a hirdetőnek
Várjon a visszahívásra