Eladó családi ház Kecskemét 129 900 000 Ft

Leírás

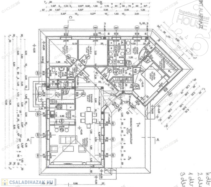
Kecskeméten, nappali + 3 szobás családi ház, 2 fürdőszobával, 36 m2 es terasszal 3001 m2-es önálló telken eladó!

Jellemzői


Nappali + 3 szoba
2026 év eleji átadás
2 gardrób
2 fürdőszoba
45 m2-es nappali
3001 m2-es telek
Bosch kazán, padlófűtéssel
2 klíma
36 m2-es terasz
tejesen körbekerítve
15 cm -es szigetelés
30 cm födémszigetelés
műanyag nyílászárók redőnnyel és szúnyoghálóval



A tulajdonos kérésére az ingatlan bemutatása egy személyes konzultáció után történik, ahol részletes tájékoztatást kaphat az ingatlan paramétereiről és egyéb kényelmi szolgáltatásairól !Figyelem az adatlap megbízónktól kapott adatok alapján készült, pontosságáért felelősséget nem tudunk vállalni!
Az iroda legfrissebb, aktuális kínálatát a HOUSE36 saját weboldalán találja!

Családi ház részletei

Ár: 129 900 000 Ft
Méret: 126 négyzetméter
Azonosító: 11560560
Irodai azonosító: 3620336-5019225
Telek: 3001 négyzetméter
Ingatlan állapota: Épülő
Jelleg: családi ház
Építőanyag: Tégla
Fűtés jellege: Cirkó
Fűtés módja: Gáz
Kor: Új építésű
Szintek száma: Földszintes
Egész szobák: 4

Térkép


Így keressen családi házat négy egyszerű lépésben. Csupán 2 perc, kötelezettségek nélkül!

Szűkítse a családi házak
listáját
Válassza ki a megfelelő
családi házat
Írjon a hirdetőnek
Várjon a visszahívásra