Eladó családi ház Kecskemét 126 500 000 Ft

Leírás

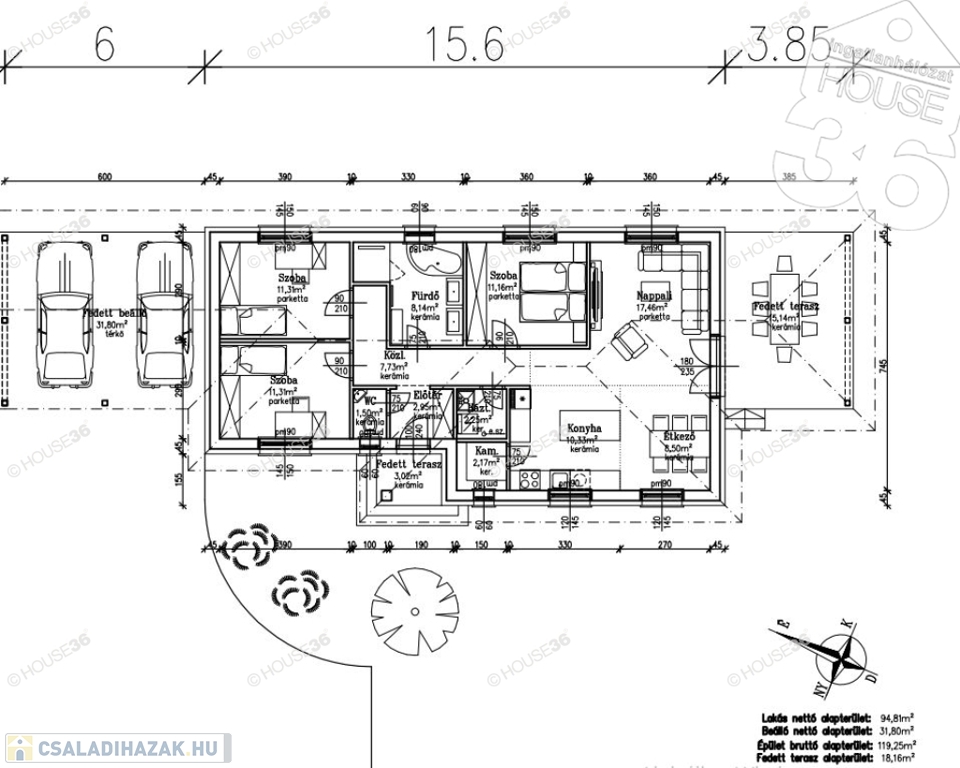
Kiváló műszaki tartalommal, nappali + 3 szobás családi ház, dupla fedett gépkocsi beállóval, 18 m2-es fedett terasszal Kadafalván eladó!

jellemzői:

- tégla építés
- 1800 m2 osztott telek
- 94 m2 lakótér
- 18 m2 fedett terasz
- 32 m2 fedett autóbeálló
- Bosch kazán, padlófűtéssel
- az ár a kulcsrakész állapotra vonatkozik
- CSOK + igénybe vehető
- 2025 augusztusi átadás


A tulajdonos kérésére az ingatlan bemutatása egy személyes konzultáció után történik, ahol részletes tájékoztatást kaphat az ingatlan paramétereiről és egyéb kényelmi szolgáltatásairól! Figyelem az adatlap megbízónktól kapott adatok alapján készült, pontosságáért felelősséget nem tudunk vállalni!
Az iroda legfrissebb, aktuális kínálatát a HOUSE36 saját weboldalán találja!

Családi ház részletei

Ár: 126 500 000 Ft
Méret: 95 négyzetméter
Azonosító: 11566736
Irodai azonosító: 3618787-4780245
Telek: 1800 négyzetméter
Ingatlan állapota: Épülő
Jelleg: családi ház
Építőanyag: Tégla
Fűtés jellege: Cirkó
Fűtés módja: Gáz
Kor: Új építésű
Szintek száma: Földszintes
Egész szobák: 4

Térkép


Így keressen családi házat négy egyszerű lépésben. Csupán 2 perc, kötelezettségek nélkül!

Szűkítse a családi házak
listáját
Válassza ki a megfelelő
családi házat
Írjon a hirdetőnek
Várjon a visszahívásra