Eladó családi ház Kecskemét 105 000 000 Ft

Leírás

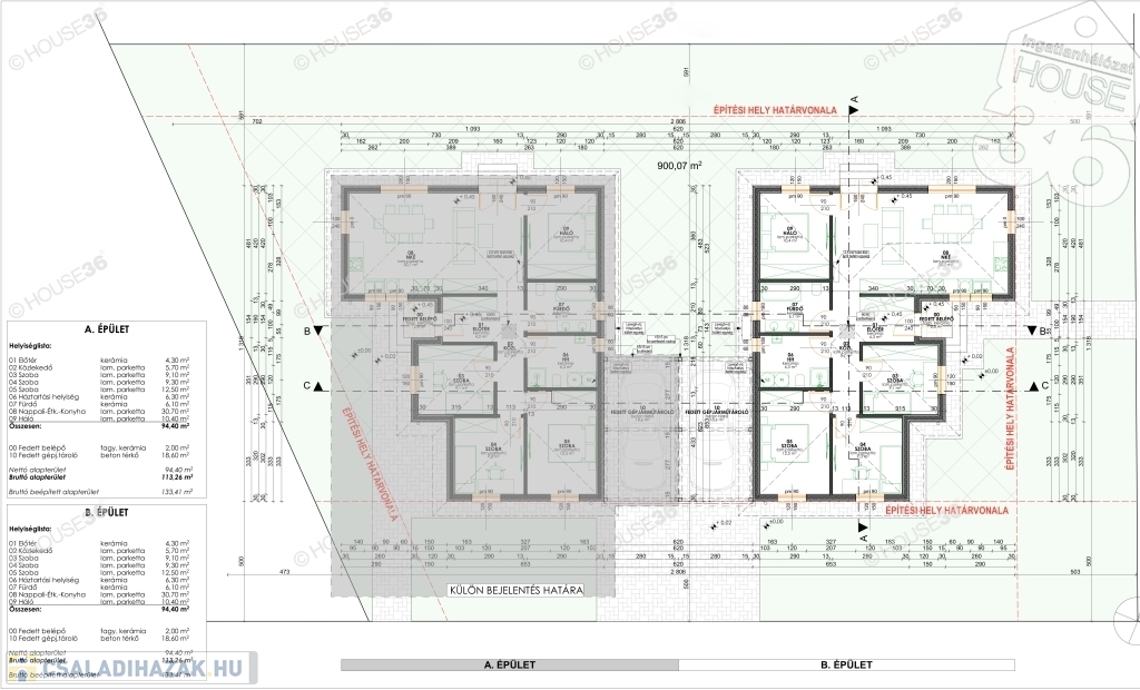
​Kecskemét legkedveltebb városrészében eladó egy új építésű családi ház.
Foglalja le most és 2026 nyarán már az iskola kezdés előtt be is költözhet .

- 4 szoba + nagy nappali étkezővel.
- hőszivattyú
- padlófűtés
- fedett gépkocsi beálló 18,6 m2
- betonút melletti
- könnyűszerkezetes
- nettó 94,4 m2 alapterület
- bruttó alapterület 113,26 m2
- bruttó beépített alapterület 133,41 m2
- 450 m2 telek
Választható színek, szaniterek, burkolatok, nyílászárók.

A HOUSE36 kínálatában lévő összes ingatlannal kapcsolatban tudok felvilágosítást nyújtani.
Szolgáltatásaink kereső ügyfeleink részére ingyenesek.
​Figyelem az adatlap megbízónktól kapott adatok alapján készült, pontosságáért felelősséget nem tudunk vállalni!
Az iroda legfrissebb, aktuális kínálatát a HOUSE36 saját weboldalán találja!

Családi ház részletei

Ár: 105 000 000 Ft
Méret: 94 négyzetméter
Azonosító: 11567749
Irodai azonosító: 3620524-5044495
Telek: 450 négyzetméter
Ingatlan állapota: Épülő
Jelleg: családi ház
Építőanyag: Tégla
Fűtés jellege: Egyéb
Kor: Új építésű
Szintek száma: Földszintes
Egész szobák: 4

Térkép


Így keressen családi házat négy egyszerű lépésben. Csupán 2 perc, kötelezettségek nélkül!

Szűkítse a családi házak
listáját
Válassza ki a megfelelő
családi házat
Írjon a hirdetőnek
Várjon a visszahívásra