Eladó családi ház Kazár 11 900 000 Ft

Leírás

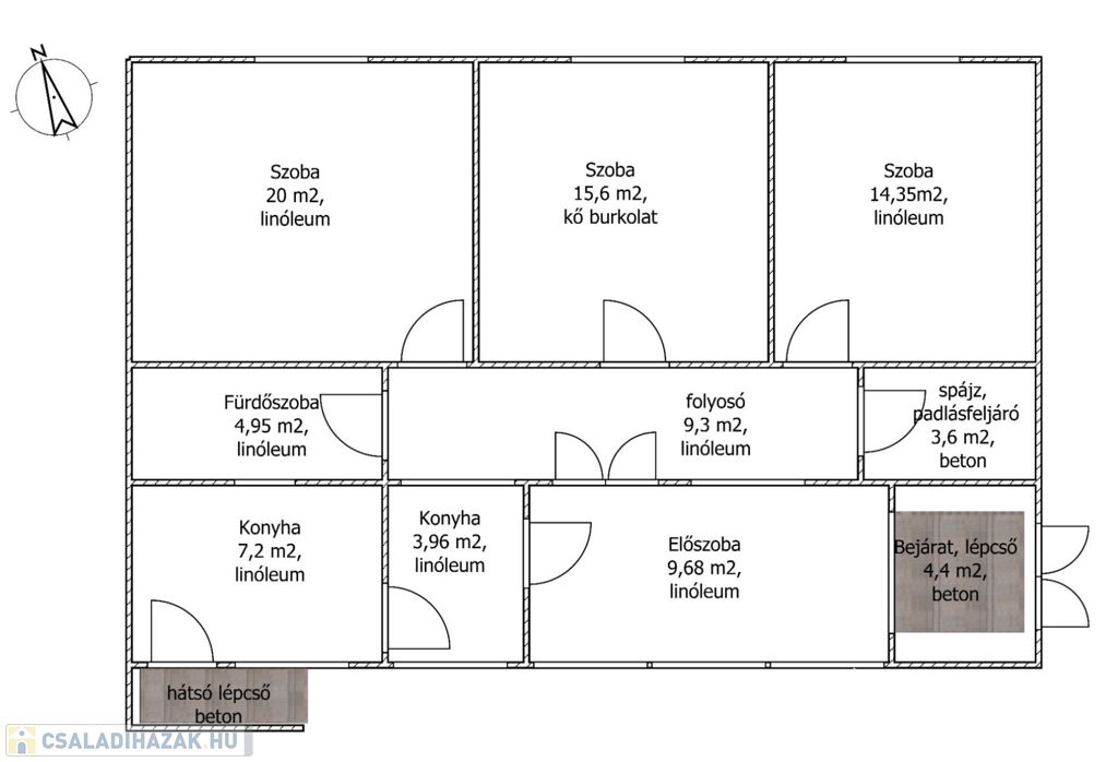
Most alkalmi áron eladó Kazáron, egy nagyon jó helyen lévő, nagy, lapos telekkel rendelkező családi ház. A ház régóta nem lakott, kívül és belül felújításra szorul, ezért is ilyen kedvező az ára. Az alapterülete 93 négyzetméter, azaz a falusi CSOK támogatás igényelhető rá, akár három gyermekkel is, így csekély saját erővel is megszerezhető! Az ingatlan összközműves, vezetékes gáz, elektromos áram, és vezetékes víz bekötéssel rendelkezik, csatlakozik a szennyvízhálózatra, továbbá elérhető az optikai Internet hálózat is. jelenleg gázkonvektoros fűtésű, és a melegvíz ellátását is átfolyós, gázüzemű vízmelegítő szolgáltatja. A szobái tágasak. A tető ácsolata új, a héjazat sajnos javításra szorul, emiatt több helyen beázási foltok vannak a mennyezeten. Az udvarra gépjárművel is be lehet állni. A ház alatt két nagy pince is van. Egy alapos felújítás után a ház a jelenlegi vételárának két-háromszorosát is megéri, mert az alapterülete nagy, a hozzá tartozó telek pedig kiváló adottságú. Aki nem ijed meg egy kis munkától, annak kiváló lehetőség, akár saját otthon, akár befektetés céljára!
Amennyiben felkeltettem az érdeklődését, hívjon a 36 70 423 1304-es telefonszámon!
Kazár az egyik leghíresebb település Nógrád Vármegyében. Az évenkét rendezett Laskafesztivál az egész országból vonzza a közönséget. Nagy, jó hírű iskolája van, szép faluháza, gazdag múltja, valamint itt található az országos hírű Riolittufa is, számtalan egyéb látnivaló mellett.
A megyeszékhely mindössze tizenöt perc alatt elérhető autóval, de rendszeres autóbuszjárat is közlekedik a település és Salgótarján között.
(További képekért és információkért kérem hívjon!)

Családi ház részletei

Ár: 11 900 000 Ft
Méret: 93 négyzetméter
Azonosító: 11574800
Irodai azonosító: 755387
Telek: 1300 négyzetméter
Ingatlan állapota: Felújítandó
Jelleg: családi ház
Építőanyag: Tégla
Fűtés jellege: Konvektoros
Egész szobák: 3
Nappalik: 3

Egyéb jellemzők

  • Beépíthető tetőtér
  • Csatorna
  • Garázs
  • Melléképület
  • Pince
  • Terasz

Így keressen családi házat négy egyszerű lépésben. Csupán 2 perc, kötelezettségek nélkül!

Szűkítse a családi házak
listáját
Válassza ki a megfelelő
családi házat
Írjon a hirdetőnek
Várjon a visszahívásra