Eladó családi ház Kazár 10 900 000 Ft

Leírás

Most alkalmi áron eladó Kazáron, egy nagyon jó helyen lévő, nagy telekkel rendelkező családi ház.
A ház régóta nem lakott, felújításra szorul, ezért nagyon kedvező az ára.
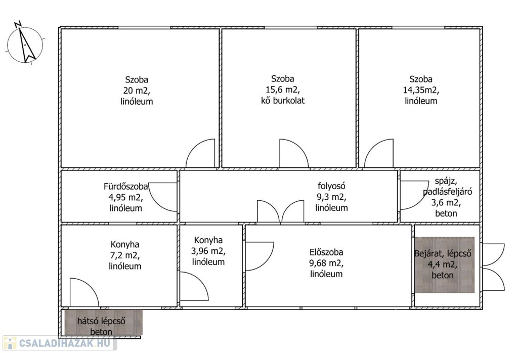
Az alapterülete 93 négyzetméter, azaz akár három gyermekkel is, igénylehető rá a falusi CSOK támogatás. Csekély saját erővel megszerezhető!
Az ingatlan összközműves, vezetékes gáz, elektromos áram, és vezetékes víz bekötéssel rendelkezik, csatlakozik a szennyvízhálózatra, továbbá elérhető az optikai Internet hálózat is.
A fűtést gázkonvektorok biztosítják, a meleg víz ellátást átfolyós, gázüzemű vízmelegítő.
A szobák tágasak, jól kihasználhatóak.
A tető ácsolata új.
Az udvarra gépjárművel be lehet állni.
A ház alatt két nagy pince is van.
Egy felújítás után a ház a jelenlegi vételárának többszörösét fogja érni, kitűnő lokációban, nagy alapterülettel, kiváló adottságú, nagy, sík telekkel.
Amennyiben felkeltettem az érdeklődését, hívjon a 36 70 423 1304-es telefonszámon!

Kazár az egyik leghíresebb település Nógrád Vármegyében. Az évenkét rendezett Laskafesztivál az egész országból vonzza a közönséget. Nagy, jó hírű iskolája van, szép faluháza, gazdag múltja, valamint itt található az országos hírű Riolittufa is, számtalan egyéb látnivaló mellett.
A megyeszékhely mindössze tizenöt perc alatt elérhető autóval, de rendszeres autóbuszjárat is közlekedik a település és Salgótarján között.
(További képekért és információkért kérem hívjon!)

Családi ház részletei

Ár: 10 900 000 Ft
Méret: 93 négyzetméter
Azonosító: 11574800
Irodai azonosító: 755387
Telek: 1300 négyzetméter
Ingatlan állapota: Felújítandó
Jelleg: családi ház
Építőanyag: Tégla
Fűtés jellege: Konvektoros
Egész szobák: 3
Nappalik: 3

Egyéb jellemzők

  • Beépíthető tetőtér
  • Csatorna
  • Garázs
  • Melléképület
  • Pince
  • Terasz

Így keressen családi házat négy egyszerű lépésben. Csupán 2 perc, kötelezettségek nélkül!

Szűkítse a családi házak
listáját
Válassza ki a megfelelő
családi házat
Írjon a hirdetőnek
Várjon a visszahívásra