Eladó családi ház Kartal 249 990 000 Ft

Leírás

KIVÁLÓ ÁLLAPOTÚ TERMÉSZETKÖZELI TÖBBGENERÁCIÓS CSALÁDI HÁZ ELADÓ!!!

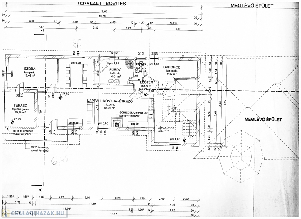
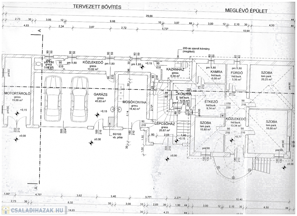
Megvételre kínálok Pest megyei Kartalon, 1780 nm-es telken, déli fekvésű nettó 435 nm-es, két szintes, két generációs, 5 szobás + amerikai konyhás nappalival ellátott, rendkívül világos családi házat.

Az első épület az 1980-as években épült téglából ( klasszikus kádár kocka), melyet 2015-ben mélységében felújítottak ( komplett tetőcsere, nyílászárócsere, homlokzati dryvit és tetőszigetelés, teljesen új gépészet, és új hideg-meleg burkolóanyagok). Továbbá az épülethez szintén 2015-ben hozzáépítésre került egy kétszintes ytong szerkezetű épület, mely további 300 nm hasznos lakrészt biztosít.

Az ingatlan fűtéséért kondenzációs gázkazán, faelgázosító kazán, illetve az emeleten egy faelgázosító kályha is található, hűtésért inverteres hűtő- fűtő klímák felelnek. Vezetékes illetve fúrt kútból származó víz is egyaránt be van vezetve a házba, melynek keménységéért és tisztaságáért vízszűrő és vízlágyító felel. Az épületben 3 fázis található és rendelkezésünkre áll 5 kw napelem is. Műanyag illetve fa minőségi thermo nyílászárók, rovarhálóval, elektromos redőnnyel ellátottak. Épület szellőzéséért automata légbeeresztők felelnek.

Belsőterek rendkívül ötletesen és ízlésesen vannak berendezve, gépesített IKEA konyhabútor, számos beépített gardrób, illetve cipősszekrény, gépesített mosókonyha áll rendelkezésünkre. Kikapcsolódásért nappaliban házimozi rendszer, az udvaron pedig fedett kerti konyha (épített grill, kemence, bográcsozó) és wellness (szauna, hatalmas jakuzzi) részleg áll rendelkezésünkre.

Épületben két autó számára fűtött garázs, elektromos töltővel, az udvaron még két autó számára fedett beálló nyújt biztonságot.

Az ingatlan megközelítése elektromos kapun történik, biztonságért riasztó illetve kamera rendszer felel.

Infrastruktúrája kiváló, 5 perc sétára távolsági buszmegálló található, autóval pedig 45-50 perc alatt Budapest belvárosa elérhető.

Az ingatlan PER illetve TEHERMENTES!

INGYENES hitel tanácsadás! CSOK+ Ügy intézés!
BANKFÜGGETLEN hitelcentrumunk minden elérhető bank és hitelintézet ajánlatát versenyezteti az Ön kedvéért, ráadásul DÍJMENTESEN.
Önnek nincs más dolga, mint elbeszélgetni munkatársunkkal, aki a hallott információk alapján versenyre hívja a bankokat, hogy Ön hosszú távon is a legjobb konstrukciót kaphassa. A legjobb ajánlatokból végül Ön választhatja ki a nyertest.
Munkatársaink sokéves szakmai tapasztalattal várják Önt, előre egyeztetve akár a normál munkaidő után is.

Amennyiben hirdetésem felkeltette érdeklődését, várom hívását, akár hétvégén is! V.I.

Családi ház részletei

Ár: 249 990 000 Ft
Méret: 435 négyzetméter
Azonosító: 11609683
Irodai azonosító: 382488
Cím: Csendes természetközeli részen
Telek: 1780 négyzetméter
Ingatlan állapota: Kitűnő
Jelleg: családi ház
Építőanyag: Kérdezzen rá a hirdetőtől »
Fűtés jellege: Cirkó
Fűtés módja: Gáz
Komfort fokozat: Luxus komfort
Kor: 11-20 éves
Szintek száma: 1 szint
Egész szobák: 5
Fél szobák: 1

Egyéb jellemzők

  • Csatorna
  • Garázs
  • Pince
  • Terasz

Térkép


Így keressen családi házat négy egyszerű lépésben. Csupán 2 perc, kötelezettségek nélkül!

Szűkítse a családi házak
listáját
Válassza ki a megfelelő
családi házat
Írjon a hirdetőnek
Várjon a visszahívásra