Eladó családi ház Karancsalja 49 900 000 Ft

Leírás

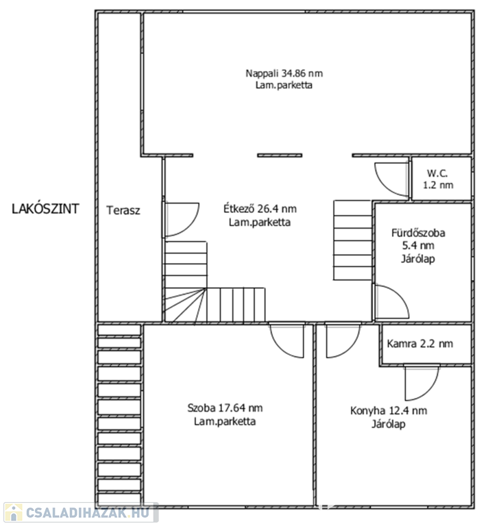
Salgótarjántól mindössze 5 perc autóútra eladó, Karancsalja közkedvelt részén, egy kiváló adottságokkal rendelkező, 241 nm hasznos alapterületű, 4 szobás, önálló családi ház.

Az ingatlan egy 1769 nm-es, téglalap alakú telken helyezkedik el, csendes, családbarát környezetben, mégis minden fontos szolgáltatás – iskola, óvoda, bevásárlási lehetőség – könnyedén elérhető a közelben.

A ház több szinten helyezkedik el, jól átgondolt, élhető és praktikus belső elrendezéssel, amely akár többgenerációs együttélésre vagy otthoni vállalkozás működtetésére is ideális lehet.

A lakótér összesen 4 szobából áll: tágas nappali és három külön nyíló hálószoba biztosít kényelmet, emellett fürdőszoba, egy külön nyíló mellékhelyiség is található az ingatlanban.

A pinceszinten helyet kapott egy 28 nm-es, fűtött garázs, amely egy nagyobb méretű autó számára is kényelmes parkolást biztosít. A szinten emellett több tárolóhelyiség és kazánház található.

A földszinten a nappali, hálószoba, fürdőszoba, étkező, konyha és kamra került kialakításra.

Az emeleti szinten két kényelmes hálószoba,és egy előtér-közlekedő kapott helyet.

A ház műszakilag jó állapotú, szerkezete stabil és masszív. Porotherm 38-as téglából épült, 10 cm külső hőszigeteléssel, amely hozzájárul az energiatakarékos fenntartáshoz. A nyílászárók korszerű, hő- és hangszigetelt műanyag ablakok. A fűtést és a meleg víz ellátást egy gáz kombi cirkó kazán biztosítja, de alternatív megoldásként vegyes tüzelésű kazán és kandalló is rendelkezésre áll, így a fűtési rendszer rugalmasan használható.

A ház 1990-ben épült, jó állapotú, azonban igény szerint kisebb esztétikai felújítás szükséges lehet.

A kert rendezett, kellemes hangulatú, amely nyugodt, pihentető légkört teremt a kertben töltött időhöz. A garázs mellett, a ház utcafronti részén egy kocsibeálló is található, amely további két autó számára biztosít kényelmes parkolást.

Ez az otthon ideális választás lehet nagycsaládosok számára, többgenerációs együttéléshez, vagy olyanoknak, akik külön bejáratú lakrészt keresnek otthoni vállalkozáshoz.

A ház tágas, jól kihasználható, a környék csendes, mégis jól ellátott – mindössze 5 perc távolságra Salgótarjántól.

A ház a falusi CSOK paramétereinek megfelel.

A ház per-és tehermentes, a további részletekért kérem hívjon.
(További képekért és információkért kérem hívjon!)

Családi ház részletei

Ár: 49 900 000 Ft
Méret: 241 négyzetméter
Azonosító: 11547240
Irodai azonosító: 265234
Telek: 1769 négyzetméter
Ingatlan állapota: Felújítandó
Jelleg: családi ház
Építőanyag: Tégla
Fűtés jellege: Cirkó
Egész szobák: 4
Nappalik: 1

Egyéb jellemzők

  • Beépíthető tetőtér
  • Csatorna
  • Garázs
  • Melléképület
  • Pince
  • Terasz

Így keressen családi házat négy egyszerű lépésben. Csupán 2 perc, kötelezettségek nélkül!

Szűkítse a családi házak
listáját
Válassza ki a megfelelő
családi házat
Írjon a hirdetőnek
Várjon a visszahívásra