Eladó családi ház Kaposvár, Kecelhegy, 99 000 000 Ft

Leírás

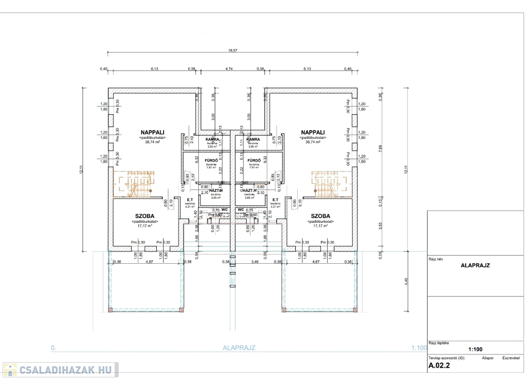
Kaposváron a Kecelhegyen, a Kőrösi Csoma Sándor utcában 2 db - egyenként nettó 116 m2-es lakórészből - osztrák technológiával épült, alacsony rezsijű könnyűszerkezetes - azonnal költözhető - új építésű ikerház eladó. A lakás a földszintjén nappali-étkező-konyha-lépcsőfeljáró, kamra, 1 szoba, fürdőszoba, külön wc, továbbá háztartási helyiség, előszoba-közlekedő kerültek kialakításra. A felső szinten közlekedő, 4 szoba, fürdőszoba-wc, továbbá egy nagy gardrób, valamint az utca felé néző szobából nyíló fedett, elegáns terasz található, amely alatt 1 db személygépkocsi tud parkolni. A lakás fenntartási költsége a felhasznált építőanyagok és műszaki megoldások miatt kedvező - a fűtés padló fűtéssel - hőszivattyúval megoldott, továbbá a nappaliban légkondicionáló is felszerelésre került. Telek: 535 m2
Amennyiben az ingatlan felkeltette az érdeklődését, kérem hivatkozzon a 291. számú ajánlatra! Irodánk címe: 7400 Kaposvár Irányi D. u. 9.

Családi ház részletei

Ár: 99 000 000 Ft
Méret: 116 négyzetméter
Azonosító: 11612547
Irodai azonosító: 291
Cím: Kőrösi Cs. S. u.
Városrész: Kecelhegy
Telek: 535 négyzetméter
Ingatlan állapota: Újszerű
Jelleg: ikerház
Építőanyag: Könnyűszerkezetes
Fűtés jellege: Geotermikus
Fűtés módja: Hőszivattyú
Komfort fokozat: Összkomfort
Elhelyezkedés: Udvari
Szintek száma: 2 szint
Egész szobák: 5
Nappalik: 1

Egyéb jellemzők

  • Terasz

Így keressen családi házat négy egyszerű lépésben. Csupán 2 perc, kötelezettségek nélkül!

Szűkítse a családi házak
listáját
Válassza ki a megfelelő
családi házat
Írjon a hirdetőnek
Várjon a visszahívásra