Eladó családi ház Kakucs 95 990 000 Ft

Leírás

ELADÓ 3 ÉVES TÁROLÓKAPCSOLATOS IKERHÁZFÉL KAKUCSON, KÖZÖS FALAK NÉLKÜL!

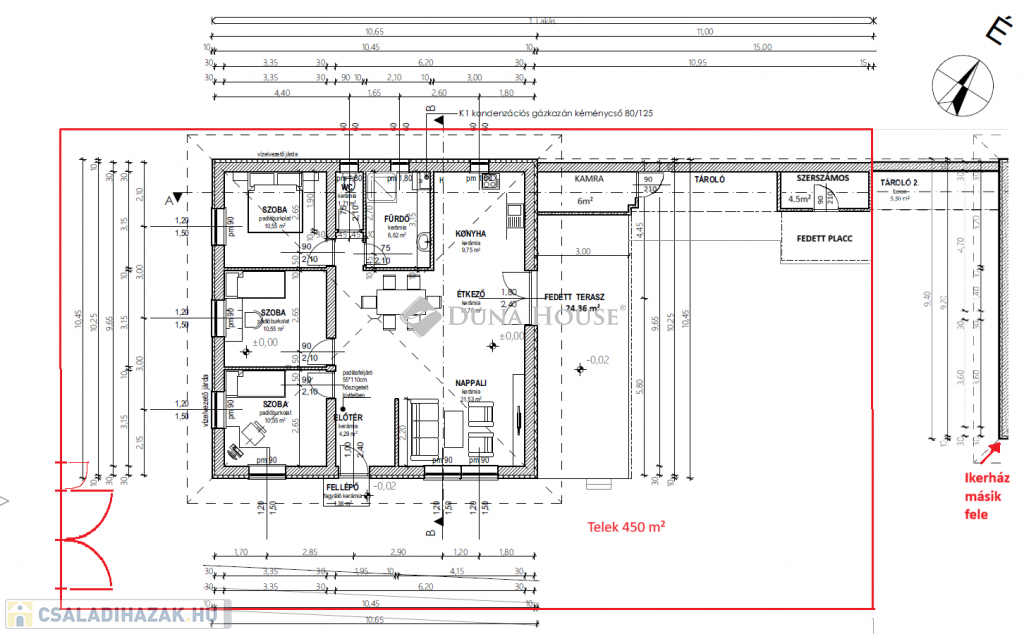
Eladásra kínálunk Kakucson egy 2023-ban elkészült 90 m2 hasznos alapterületű ikerházfelet 450 m2-es saját telekrésszel.

Helyiségeket tekintve az ingatlan rendelkezik 3 külön nyíló hálószobával, egy amerikai-konyhás nappalival és étkezővel, fürdővel és külön WC-vel és egy előtérrel.
A hasznos alapterületen kívül egy 24 m2-es fedett terasz, 6 m2-es kamra és egy 4,5 m2-es tároló is kialakításra került.

ÉPÜLET:Az épület beton alapra téglából, fa födémmel és tetőszerkezettel, betoncserép fedéssel épült.10 cm homlokzati, 10 cm lépésálló lábazati- és 30 cm-es ásványgyapot födémszigeteléssel rendelkezik.
Prémium nyílászárók: 3 rétegű üvegezéssel ellátott, 6 kamrás profilok a kiváló hang - és hővédelemért.
Fűtését ARISTON kondenzációs kazán biztosítja padlófűtéses és radiátoros hőleadással.

EXTRÁK:- WIFI-s hővisszanyerős szellőztető rendszer, hűtő-fűtő klíma és egy törölközőszárító- 3 fázisú elektromos kiállás napelemes rendszer inverterének fogadására- Ethernet- és koaxiális csatlakozás minden szobában- Kamerás kaputelefon és kamerarendszer- Elektromos kapu távnyitással és rádióvezérlésű autókapu.

KERT:- 450 m2 alapterületű saját, körbekerített kertrész- 48 m²-es murvázott gépkocsibeálló több autó parkolására is- 2350 liter vízgyűjtő kapacitás (1000 literes tartály szivattyúval)- magaságyások, üvegház.

Az ingatlan saját helyrajziszámmal rendelkezik, jogilag teljesen külön funkcionál a szomszédos ikerházféltől.

ÖRÖMMEL ÁLLOK RENDELKEZÉSÉRE A DUNA HOUSE KÍNÁLATÁBAN MEGTALÁLHATÓ ÖSSZES INGATLANNAL KAPCSOLATBAN.
HÉTVÉGÉN IS VÁROM MEGTISZTELŐ HÍVÁSÁT!

Referencia szám: HZ089054

Családi ház részletei

Ár: 95 990 000 Ft
Méret: 90 négyzetméter
Azonosító: 11606561
Irodai azonosító: HZ089054-5177442
Telek: 450 négyzetméter
Ingatlan állapota: Kitűnő
Jelleg: ikerház
Építőanyag: Tégla
Fűtés jellege: Cirkó
Fűtés módja: Gáz
Komfort fokozat: Összkomfort
Kor: 1-5 éves
Szintek száma: Földszintes
Egész szobák: 4

Egyéb jellemzők

  • Garázs

Térkép


Így keressen családi házat négy egyszerű lépésben. Csupán 2 perc, kötelezettségek nélkül!

Szűkítse a családi házak
listáját
Válassza ki a megfelelő
családi házat
Írjon a hirdetőnek
Várjon a visszahívásra