Eladó családi ház Kakucs 45 000 000 Ft

Leírás

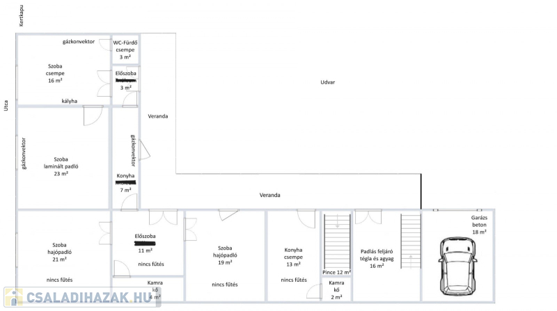
 Budapesttől az M5 autópályán 40km-re található,Kakucs központi részén eladásra kínálok egy 125 nm fellújítondó 4 szobás családi házat.Az eladó sorba került ház, az 50-es években épült.Utcafrontos beépítésű a telken befelé L alakban helyezkedik el.Polgári jellegű a külső része, és a belső elosztáson is fel fedezhető.A villanyhálózat 2006-ben teljes körűen fel lett újítva.Részben vályog és tégla építésű is.A ház elosztása alkalmas 2 önálló lakás kialakítására is.Az ingatlan összközműves, ipari, éjszaki áram is van.A telek 1475nm, gazdálkodásra, állattartásra is alkalmas.A ház része a garázs is de ezen kívül egy könnyűszerkezetes tároló is.Tehermentes, nagyon rövid időn belül birtokba vehető. Jelenleg a ház kiürítésé zajlik.Befektetésre is ajánlom.CSOK,hitel, felvehető! Ha felkeltette érdeklődését kérem hívjon. O62O4OO4O26
 

Családi ház részletei

Ár: 45 000 000 Ft
Méret: 125 négyzetméter
Azonosító: 11574119
Telek: 1500 négyzetméter
Ingatlan állapota: Felújítandó
Jelleg: családi ház
Építőanyag: Kérdezzen rá a hirdetőtől »
Fűtés jellege: Cirkó
Komfort fokozat: Összkomfort
Egész szobák: 4
Fél szobák: 1

Egyéb jellemzők

  • Garázs
  • Kábel TV
  • Melléképület
  • Parketta
  • Pince
  • Terasz

Így keressen családi házat négy egyszerű lépésben. Csupán 2 perc, kötelezettségek nélkül!

Szűkítse a családi házak
listáját
Válassza ki a megfelelő
családi házat
Írjon a hirdetőnek
Várjon a visszahívásra