Eladó családi ház Kakucs 99 500 000 Ft

Leírás

Új Építésű Ikerházak Várják Kakucson!

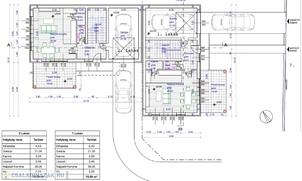
Képzelje el, hogy egy teljesen új otthonba költözhet, egy csendes, csak új építésű házakból álló, gyönyörű környezetben Kakucson! Most itt a páratlan lehetőség: két 133 m²-es, kulcsrakész ikerházfél keresi gazdáját egy 980 m²-es, körbekerített telken! Tökéletes választás összeköltözőknek, de ideális befektetés is lehet!

Modern Design és Kényelem Minden Szinten

Ezek a házak valódi ékszerdobozok, ahol minden részletet az Ön kényelmét szolgálja. A földszinten 71 m², az emeleten 62 m² terül el, melyet egy igényes és kényelmes lépcső köt össze. A belső tér hatalmas, világos ablakokkal van tele, ami garantálja a napfényes hangulatot és a stílusos megjelenést – ez a környéken egyedülálló!

A tervezés során a funkcionalitás és az otthonosság volt a fő szempont:

3 tágas szoba a pihenéshez.

Konyha-étkező-nappali egyben, a családi élet központja.

Modern fürdőszoba és külön mellékhelyiség.

Praktikus kamra a tárolásra.

Külön garázs Hörmann elektromos garázskapukkal a kényelmes parkolásért.

Mindkét szinten nagy teraszok hívogatnak, hogy élvezze a friss levegőt és a kellemes környezetet!

Energiatakarékos Megoldások a Jövő Otthonában

Ne aggódjon a rezsiszámlák miatt! A házak hűtéséről, fűtéséről és a melegvízről egy 9KW-os Panasonic hőszivattyú gondoskodik, padlófűtéssel kiegészítve. Ráadásul a hűtésről 4 helyiségben felső befúvású fancoil készülékek gondoskodnak, melyek H tarifás órákkal vannak kiépítve, így még kedvezőbb lesz a fogyasztása! A napelem kiépítése is lehetséges, ha még tovább szeretné csökkenteni az energiaszámlákat.

Az építkezés során kizárólag minőségi anyagokat használtak: a falazat viablokk, 10 cm-es szigeteléssel, a tetőn pedig antracit színű beton cserép található. A nyílászárók antracit kívül és fehér belül színű műanyagok, melyek tökéletesen illeszkednek a modern designhoz.

Személyre Szabott Extrák és Rugalmasság

Az ingatlanokhoz térkövezett gépkocsibeálló is tartozik. Ráadásul, ha még tovább szeretné álmai otthonát testre szabni, az alábbiak külön választható opciók:

Elektromos redőnyök

Kertépítés

Kamera rendszer

Riasztó

Konyhabútor

Háztartási gépek

A hideg és meleg burkolatokat bruttó 8.000,- Ft/m2 árig szabadon választhatja ki, így valóban a saját ízlése szerint alakíthatja otthonát!

Az ingatlan tervek szerint 2025. IV. negyedévére készül el, így már nem kell sokat várnia, hogy beköltözzön a vadonatúj otthonába!

Ne hagyja ki ezt a kivételes lehetőséget Kakucs új, csendes részén! Hívjon még ma, és tudjon meg többet erről a fantasztikus ikerházról!

Irányár: 99500000 Ft
Érd: Péter-Kovács Ildikó 70/9777-820

Referencia szám: 436604-NOK

Családi ház részletei

Ár: 99 500 000 Ft
Méret: 133 négyzetméter
Azonosító: 11555128
Irodai azonosító: 436604-5002690
Telek: 980 négyzetméter
Ingatlan állapota: Épülő
Jelleg: ikerház
Építőanyag: Tégla
Fűtés jellege: Villany
Fűtés módja: Villany
Komfort fokozat: Összkomfort
Kor: Új építésű
Szintek száma: Földszintes
Egész szobák: 3

Egyéb jellemzők

  • Garázs

Térkép


Így keressen családi házat négy egyszerű lépésben. Csupán 2 perc, kötelezettségek nélkül!

Szűkítse a családi házak
listáját
Válassza ki a megfelelő
családi házat
Írjon a hirdetőnek
Várjon a visszahívásra