Eladó családi ház Kacorlak 35 000 000 Ft

Leírás

ZALAI NYUGALOM NAGYKANIZSA KÖZELÉBEN – TÁGAS TELKES CSALÁDI HÁZ KACORLAKON

Nagykanizsától mindössze kb. 10 km-re, a nyugodt, barátságos Kacorlak településen kínálok megvételre egy 85 m²-es családi házat, amely egy 2618 m²-es, tágas telken helyezkedik el.
Az ingatlan ideális választás azok számára, akik csendes, vidéki környezetben szeretnének élni, de fontos számukra, hogy Nagykanizsa gyorsan és kényelmesen elérhető legyen.

Az ingatlan főbb jellemzői
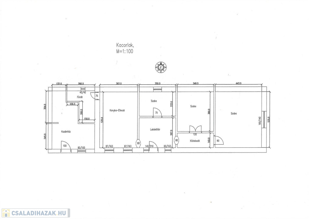
• lakóterület: 85 m²
• telek mérete: 2618 m²
• csendes, zalai falusi környezet
• 3 külön bejáratú szoba

Helyiségek
• előszoba
• tágas konyha + étkező
• közlekedő
• 3 külön nyíló szoba
• fürdőszoba épített tusolóval + WC

Fűtés
A ház többféle fűtési lehetőséget kínál, ami biztonságos és gazdaságos üzemeltetést tesz lehetővé:
• cirkó-gáz központi fűtés radiátorokkal
• fatüzelésű központi kazán
• hangulatos cserépkályha a konyhában

Felújítások az elmúlt 10 évben
Az ingatlan az elmúlt években több fontos korszerűsítésen is átesett:
• tető felújítása
• födém szigetelése 2 × 10 cm kőzetgyapottal
• új konyhabútor
• fürdőszoba felújítása
• cirkó-gáz fűtés kiépítése
• műanyag nyílászárók beépítése
• a ház keleti és északi oldalán aljzatszigetelés elkészült
(a déli oldalon még hátra van a szigetelés)
Telek
A 2618 m²-es telek kiváló lehetőséget kínál:
• kertészkedésre
• gazdálkodásra
• gyümölcsös kialakítására
• vagy akár egy nagy, nyugodt pihenőkert megvalósítására.

Lokáció
Kacorlak egy csendes, rendezett zalai település, ahol a természet közelsége és a nyugalom adott, miközben Nagykanizsa és az autópálya csatlakozás, néhány perc autóúttal elérhető.

Ha egy nyugodt környezetben lévő, nagy telkes családi házat keres Nagykanizsa közelében, amely már több felújításon is átesett, érdemes személyesen is megnézni ezt az ingatlant.

Amennyiben a vársárláshoz szüksége van hitelre, jogosult a Magyarország Kormánya által nyújtott 3%-os Otthon Start programra, vagy a gyermekvállaláshoz kötött Babaváróra, vissza nem térítendő állami támogatásra Falusi CSOK-ra, vagy a vagy CSOK+ - ra, irodánkban - a CSASZI Ingatlan és Hitelirodában - bank semleges, független hitelszakértő 20 éves szakmai tapasztalattal és kiváló banki kapcsolatokkal díjmentesen segíti a legkedvezőbb pénzügyi konstrukció kiválasztását és a hitelkérelem teljes körű összeállítását. Ügyvédi kapcsolataink révén az adásvételi szerződést is tudjuk rugalmasan szervezni.
Irodánkban mindent egyszerűen és egy helyen intézhet!


Családi ház részletei

Ár: 35 000 000 Ft
Méret: 85 négyzetméter
Azonosító: 11606404
Irodai azonosító: 3739
Cím: Zrínyi Miklós utca
Telek: 2618 négyzetméter
Ingatlan állapota:
Jelleg: családi ház
Építőanyag: Tégla
Fűtés jellege: Házközponti
Fűtés módja: Fa
Komfort fokozat: Összkomfort
Kor: 50 évesnél régebbi
Elhelyezkedés: Udvari
Szintek száma: Földszintes
Egész szobák: 3

Egyéb jellemzők

  • Beépíthető tetőtér
  • Csatorna
  • Garázs
  • Kábel TV
  • Melléképület
  • Padlás
  • Parketta

Térkép


Így keressen családi házat négy egyszerű lépésben. Csupán 2 perc, kötelezettségek nélkül!

Szűkítse a családi házak
listáját
Válassza ki a megfelelő
családi házat
Írjon a hirdetőnek
Várjon a visszahívásra