Eladó családi ház Jászberény 84 900 000 Ft

Leírás

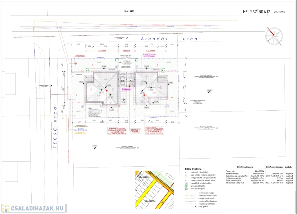
Jászberényben a Szatmáry Lakóparkban a Técső utca és az Árendás utca sarkán 882 m2-es telken eladó egy nettó 114,12 m2-es, 441 m2-es kizárólagos használatú telekrésszel rendelkező kulcsrakész újépítésű Ikerfél.

Az ingatlanok nem érnek össze!

A tartószerkezeti falak 30-as porotherm téglából készültek, a padlón 10cm lépésálló szigeteléssel, a homlokzatokon 10cm-es eps szigeteléssel, a vízszintes födémen 30 cm ásványgyapot szigeteléssel. A külső nyílászárók korszerű 6 légkamrás, 3 rétegű üvegekkel szereltek.

Fűtéséről és a használati melegvízről kondenzációs gázkazán gondoskodik, padlón történő hőleadással. A hűtésért inverteres hűtő-fűtő klíma felel.

Minőségi burkolatok, beltéri ajtók, szaniterek, elektromos alumínium redőnyök szúnyoghálóval, gépesített konyha (Whirpool 6. érzék) jellemzik az ingatlant.


INGYENES hitel tanácsadás, CSOK Plusz ügyintézés!
BANKFÜGGETLEN hitelcentrumunk az összes elérhető bank és hitelintézet ajánlatát versenyezteti az Ön kedvéért, ráadásul DÍJMENTESEN.

- Egyedi, bankfiókban nem elérhető kamat- és díjkedvezmények
- Hitelképesség vizsgálat
- Idő, energia és pénz megtakarítás
- Teljes hivatali ügyintézés

Amennyiben hirdetésem felkeltette az érdeklődését vagy egyéb információra van szüksége hívjon bizalommal!

Családi ház részletei

Ár: 84 900 000 Ft
Méret: 114 négyzetméter
Azonosító: 11556524
Irodai azonosító: 386069
Cím: Árendás utca
Telek: 441 négyzetméter
Ingatlan állapota: Kitűnő
Jelleg: ikerház
Építőanyag: Tégla
Fűtés jellege: Cirkó
Fűtés módja: Gáz
Komfort fokozat: Összkomfort
Kor: 1-5 éves
Szintek száma: Földszintes
Egész szobák: 4

Egyéb jellemzők

  • Csatorna
  • Garázs
  • Pince
  • Terasz

Térkép


Így keressen családi házat négy egyszerű lépésben. Csupán 2 perc, kötelezettségek nélkül!

Szűkítse a családi házak
listáját
Válassza ki a megfelelő
családi házat
Írjon a hirdetőnek
Várjon a visszahívásra