Eladó családi ház Jakabszállás 53 990 000 Ft

Leírás

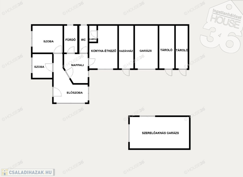
Eladó 127 m2-es családi ház 1299 m2-es telken Jakabszálláson!

-127 m2 lakótér
-1299 m2 telek
-8 m2 terasz
-14,42 m2 pince
-melléképületek, dupla, szerelőaknás garázs
+ szimpla garázs, gépkocsi beálló

Gondozott kert, sok melléképület és termő gyümölcsfák teszik teljessé az ingatlant!

Főbb jellemzők:

-B30-as tégla épület
-gázfűtés + vegyes tüzelésű kazán
-melegvíz: villanybojler
-nyílászárók: fa ablakok redőnnyel, műanyag bejárati ajtók
-burkolatok: kő és laminált parketta (2024-ben szobák burkolatcseréje és az ingatlan festése megtörtént)
-fúrt kút
-3 fázisú áram!
-cserép fedésű tető

Buszmegálló, bolt 500, iskola 800, óvoda 300 méterre található.

Ez az ingatlan ideális választás nagycsaládosoknak vagy azoknak, akik szeretnének nagy telken, jó elosztású, stabil szerkezetű házban élni.

Figyelem, az adatlap kapott adatok alapján készült, pontosságáért felelősséget nem tudunk vállalni.
A tulajdonos kérésére az ingatlan bemutatása egy személyes konzultáció után történik, ahol részletes tájékoztatást kaphat az ingatlan paramétereiről és egyéb kényelmi szolgáltatásairól.
Amennyiben vásárlásához el kell adnia saját ingatlanát, szívesen segítek, forduljon hozzám bizalommal!
Az iroda legfrissebb, aktuális kínálatát a HOUSE36 saját weboldalán találja!

Családi ház részletei

Ár: 53 990 000 Ft
Méret: 127 négyzetméter
Azonosító: 11566109
Irodai azonosító: 3620397-5032378
Telek: 1299 négyzetméter
Ingatlan állapota: Átlagos
Jelleg: családi ház
Építőanyag: Tégla
Fűtés jellege: Cirkó
Fűtés módja: Gáz
Kor: 21-50 éves
Szintek száma: Földszintes
Egész szobák: 3

Térkép


Így keressen családi házat négy egyszerű lépésben. Csupán 2 perc, kötelezettségek nélkül!

Szűkítse a családi házak
listáját
Válassza ki a megfelelő
családi házat
Írjon a hirdetőnek
Várjon a visszahívásra