Eladó családi ház Iszkaszentgyörgy 79 900 000 Ft

Leírás

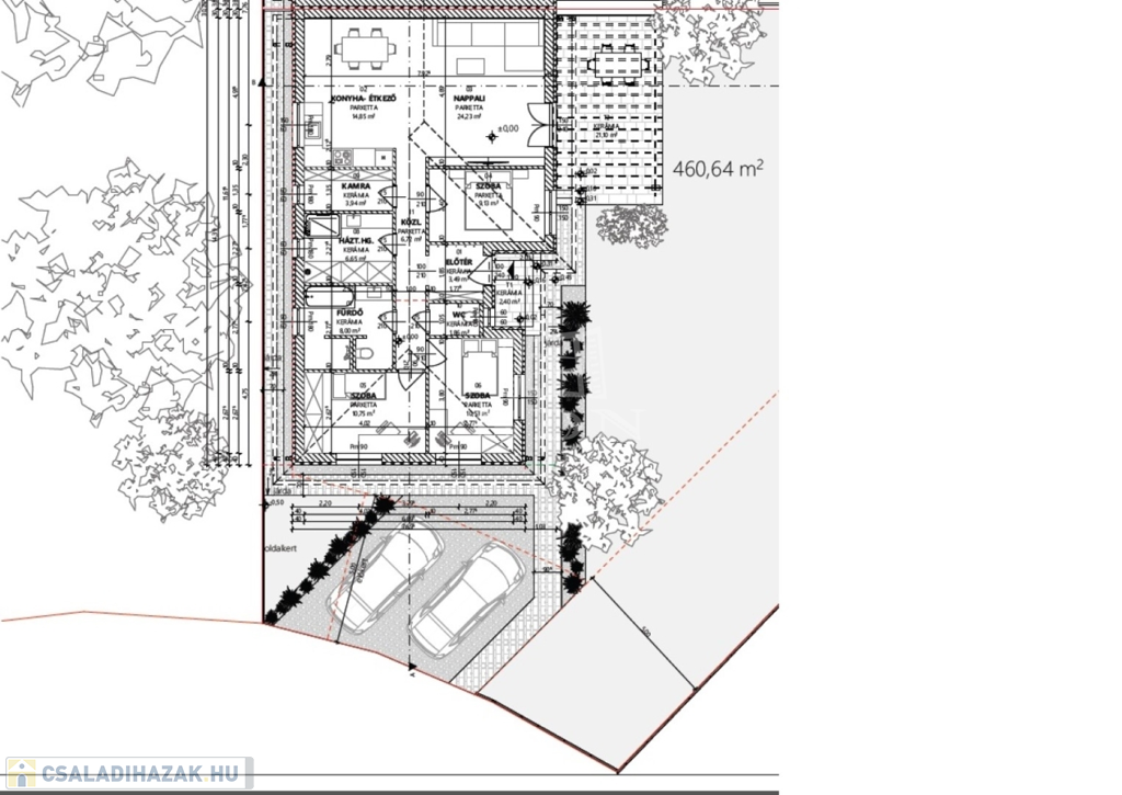
Iszkaszentgyörgyön, a Márványkert szomszédságában, csendes, kedvelt részen egyszintes, igényes és egyedi kivitelezésű nappali+ 3 szobás, újépítésű ikerházi egység saját 460m2-es telken eladó!

Az ingatlan könnyen megközelíthető, a környék tömegközlekedése jó, a településen minden elérhető, ami a kényelmes életvitelhez elengedhetetlen ( orvosi rendelő, gyógyszertár, posta, bölcsőde, óvoda, polgármesteri hivatal, boltok, piac, fitness-terem, tanösvény, Kastély Park, sportpálya, szépészeti szolgáltatások, kutyaiskola és panzió, cukrászdák).

A ház tágas, világos, körbe napozott, a mai kor igényszintjének megfelelő, minőségi anyagokból, korszerű dizájnnal és kialakítással készül.

Műszaki paraméterek:
- a homlokzati falak 30 cm vastag téglafalazatúak 10cm vastag szigeteléssel, a válaszfalak szintén tégla szerkezetűek
- a lábazat 5cm vastag XPS szigetelést kap
- a tetőszerkezet szeglemezes, könnyített födém készül Isocell cellulóz szigeteléssel, Bramac beton cserép fedéssel. ( a padlástér felár ellenében opcionálisan rakodhatóvá/járhatóvá tehető)
- A fűtést hőszivattyú biztosítja padlófűtéses hőleadással, melynek köszönhetően a ház H-tarifás kedvezményben részesül fűtési szezonban.
- a nyílászárók műanyagok, 6 kamrás, 3 rétegű üvegezésűek

A ház hideg,-meleg burkolatjai, szaniterei, nyílászárók színei, homlokzati színei előre megadott ár kategóriákon belül választhatók.
(Egyéb speciális munkák kivitelezésének igénye (pl: klíma, szellőző rendszer, központi porszívó, kandalló, kémény kialakítás, víztisztító kiállás stb.) külön egyeztetést igényel)
(részletes műszaki leírás igényével kapcsolatban, kérem írjon üzenetet)

Elosztását tekintve 103 m2 hasznos alapterületű
Előszoba, amerikai konyhás nappali kamrával, 3db 9m2-es hálószoba, vendég wc és háztartási helyiség kerül kialakításra. A házhoz kapcsolódik egy fedett terasz és egy 21m2-es terasz.

Fontosabb paraméterek:
● 2025 év végi átadás
● 460 m2 önálló telekterület
● Nappali + 3 hálószoba
● H tarifás villany
● Hőszivattyú
● Alacsony rezsiköltség

Megbízható és tapasztalt ingatlanfejlesztő, kivitelező jegyzi a ház építését, számtalan referenciaépülettel rendelkezik. A vásárláshoz, a jelenleg aktuális családok „újépítésű” otthonteremtésére vonatkozó összes támogatás igénybe vehető.

AZ INGATLAN ALKALMAS 5%-os ÁFA, CSOK, CSOK HITEL IGÉNYBEVÉTELÉRE!
Eladási irányár: 79,9 M Ft

Az ingatlan adottságainak, fekvésének köszönhetően alkalmas továbbá vállalkozásra, üzleti vagy befektetési célra, hiszen akár bérbe adható, vagy üzlet, szolgáltatás (pl: orvosi rendelő, fodrász, kozmetika, irodai tevékenység,(Csendes tevékenység engedélyezett).

Ha felkeltette érdeklődését, hívjon bizalommal, (hétvégén is) éljen ingyenes, személyre szabott hitelügyintézés szolgáltatásunkkal. Segítünk továbbá adásvételhez szükséges ügyvédi közreműködésben, energetikai tanúsítvány, valamint értékbecslés elkészítésében.

For English information please send a message.

Családi ház részletei

Ár: 79 900 000 Ft
Méret: 103 négyzetméter
Azonosító: 11512129
Irodai azonosító: 380893
Cím: Mohai út
Telek: 460 négyzetméter
Ingatlan állapota: Kitűnő
Jelleg: ikerház
Építőanyag: Tégla
Fűtés jellege: Geotermikus
Fűtés módja: Hőszivattyú
Komfort fokozat: Összkomfort
Kor: Új építésű
Szintek száma: Földszintes
Egész szobák: 4

Egyéb jellemzők

  • Csatorna
  • Garázs
  • Pince
  • Terasz

Térkép


Így keressen családi házat négy egyszerű lépésben. Csupán 2 perc, kötelezettségek nélkül!

Szűkítse a családi házak
listáját
Válassza ki a megfelelő
családi házat
Írjon a hirdetőnek
Várjon a visszahívásra