Eladó családi ház Isaszeg 90 000 000 Ft

Leírás

Isaszegen eladó energiahatékony ikerház fél, közel nulla rezsivel!

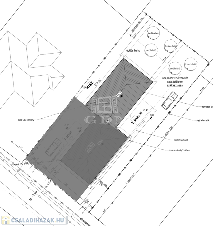
Isaszeg egyik legcsendesebb zsákutcájában, a Szent Erzsébet utcában, új építésű házak között, eladó egy nettó 95 m²-es, három szoba + amerikai konyhás nappalis ikerházfél 28 m² terasszal, 527 m²-es, kizárólagos használatú telekrésszel.
Az ingatlan 2021-ben épült, A energetikai besorolású, modern, energiahatékony otthon, amely minimális fenntartási költséggel működtethető.

A ház egy 810 m²-es telekre épült, a társasházi alapító okirat révén a két lakóegység külön helyrajzi számon szerepel. Az eladásra kínált hátsó lakrész teljesen elszeparált, így a nyugalom és a privát tér garantált.

A tartószerkezeti falak Porotherm P30 N+F téglából épültek, grafitos hőszigeteléssel. A háromrétegű üvegezésű nyílászárók alumínium szigetelt redőnnyel és szúnyoghálóval felszereltek.

A fűtés és a melegvíz előállítása több forrásból is biztosított:
a 10 kW-os napelemes rendszer (még 7 évig szaldós elszámolással) teljesen fedezi a villamosenergia-igényt az elektromos kazánnal és a villanybojlerrel, míg a kondenzációs gázkazán önállóan is használható, a fűtés és a melegvíz ellátására, havi kevesebb mint 10.000.-Ft gázfogyasztással és felhasználható az évi közel 10 MWh energiatermelés akár elektromos autó töltésére is.

A padlófűtés, az igényes hideg- és melegburkolatok, valamint a gépesített, mosogatógéppel és páraelszívóval felszerelt konyha a mindennapi kényelmet szolgálják.

A fürdőszobában kád és zuhanyzó is helyet kapott, továbbá külön mellékhelyiség is kialakításra került.
Az ikerházakat elválasztó fal hangszigeteléssel épült.

A 35 m²-es garázs két autó kényelmes tárolására alkalmas, a térkövezett kocsibeálló, valamint az öntözőrendszerrel ellátott kert tovább növeli a komfortérzetet.

Riasztórendszer és elektromos kapu beszerelésére az előkészítés már ki lett alakítva.

INGYENES hitel tanácsadás, CSOK Plusz ügyintézés!
BANKFÜGGETLEN hitelcentrumunk az összes elérhető bank és hitelintézet ajánlatát versenyezteti az Ön kedvéért, ráadásul DÍJMENTESEN.

- Egyedi, bankfiókban nem elérhető kamat- és díjkedvezmények
- Hitelképesség vizsgálat
- Idő, energia és pénz megtakarítás
- Teljes hivatali ügyintézés

Amennyiben hirdetésem felkeltette az érdeklődését vagy egyéb információra van szüksége hívjon bizalommal!

Családi ház részletei

Ár: 90 000 000 Ft
Méret: 95 négyzetméter
Azonosító: 11578702
Irodai azonosító: 389497
Cím: Szent Erzsébet utca
Telek: 527 négyzetméter
Ingatlan állapota: Kitűnő
Jelleg: ikerház
Építőanyag: Tégla
Fűtés jellege: Cirkó
Fűtés módja: Gáz
Komfort fokozat: Összkomfort
Kor: 1-5 éves
Szintek száma: Földszintes
Egész szobák: 4

Egyéb jellemzők

  • Csatorna
  • Garázs
  • Pince
  • Terasz

Térkép


Így keressen családi házat négy egyszerű lépésben. Csupán 2 perc, kötelezettségek nélkül!

Szűkítse a családi házak
listáját
Válassza ki a megfelelő
családi házat
Írjon a hirdetőnek
Várjon a visszahívásra