Eladó családi ház Iregszemcse 19 990 000 Ft

Leírás

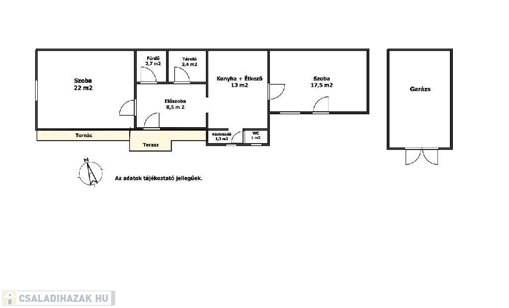
Családi ház eladó Iregszemcsén, a Balatontól mindössze 27 km-re, Tamásitól pedig 13 km-re. Az ingatlan egy 565 m2-es, teljesen körbekerített telken helyezkedik el, amely füvesített és gyümölcsfákkal telepített, így ideális pihenésre, kertészkedésre is. A 68 m2-es lakóház az 1960-as években épült, vegyes falazatú, jó állapotban lévő ingatlan. Fűtéséről cserépkályha és hűtő-fűtő klímaberendezés gondoskodik, a melegvizet villanybojler biztosítja. A ház külső téglafala 10 cm vastag szigetelést kapott, hőszigetelt műanyag nyílászárókkal rendelkezik. Tíz évvel ezelőtt teljeskörű villanyvezeték- és részleges vízvezetékcsere történt. A falak és a padlás száraz. A ház gondosan karbantartott. A lakótérben két tágas szoba, konyha, fürdőszoba, külön WC, előtér és kamra található. Az udvarban egy 32 m2-es, fedett, aknával ellátott betonos garázs épült öt éve. Az ingatlan jelenleg is lakott, a berendezés megbeszélés tárgyát képezi. Ez a ház ideális választás lehet pároknak vagy 1-2 gyermekes családoknak, de a Balaton és a Tamási termálfürdő közelsége miatt nyaralónak is tökéletes. A településen megtalálható bölcsőde, óvoda, általános iskola és gyógypedagógiai intézmény, továbbá fogorvosi és háziorvosi rendelők, gyógyszertár, posta, dohánybolt, benzinkút, étterem, pizzéria és több helyi vállalkozás is működik. A ház a központtól mindössze 6 percnyi kerékpárútra, csendes utcában található. A legközelebbi buszmegálló gyalog mindössze 3 perc alatt elérhető. Az ingatlan per-és tehermentes. Megfelel az Otthon Start program feltételeinek.
További információért és megtekintésért kérem, keressen bizalommal!

Referencia szám: M315150

Családi ház részletei

Ár: 19 990 000 Ft
Méret: 68 négyzetméter
Azonosító: 11572971
Irodai azonosító: M315150-5062813
Telek: 565 négyzetméter
Ingatlan állapota:
Jelleg: családi ház
Építőanyag: Vegyes
Fűtés jellege: Egyéb
Komfort fokozat: Komfort
Kor: 50 évesnél régebbi
Szintek száma: Földszintes
Egész szobák: 2

Egyéb jellemzők

  • Garázs

Térkép


Így keressen családi házat négy egyszerű lépésben. Csupán 2 perc, kötelezettségek nélkül!

Szűkítse a családi házak
listáját
Válassza ki a megfelelő
családi házat
Írjon a hirdetőnek
Várjon a visszahívásra