Eladó családi ház Inárcs 91 800 000 Ft

Leírás

Inárcson – KITŰNŐ ÁLLAPOTÚ, ENERGIATAKARÉKOS családi ház eladó! Bruttó 123m2, 3 szoba, garázs, rendezett 828 nm-es telken, CSENDES, utcában. Belső hasznos terület: 79m2.

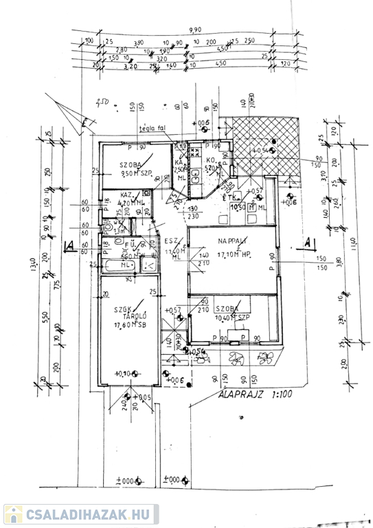
Elrendezés és méretek:
- Előszoba 11,4 nm, nappali 17,1 nm
- Szoba: 10,4 nm, szoba: 9,5 nm
- Étkező 10,5 nm, konyha 5,2 nm
- Fürdő 6,6 nm, külön WC 1,3 nm
- Kamra 2,5 nm, kazánház 4,2 nm
- Garázs 17,6 nm
- Elő- és hátsó teraszok összesen 27 nm

Műszaki tartalom – MEGBÍZHATÓ, TAKARÉKOS ÜZEM:

- Falazat: 10 cm Ytong + 10 cm szigetelés + párazáró + gipszkarton; könnyűszerkezet kombinációjával készült.
- Padlószigetelés 3 cm, födémszigetelés 10 cm; járható padlás, feljáró a garázsból
- Nyílászárók: fenyő, KÉTRÉTEGŰ THERMO üvegezéssel.
- HŐHÍDMENTES szerkezet, ENERGETIKAI MINŐSÍTÉS: A++

Fűtés és energia – ALACSONY REZSI, FENNTARTHATÓ MEGOLDÁSOK:

- GÁZCIRKÓ radiátoros hőleadókkal
- Alternatív fűtés: 5,2 kW INVERTERES KLÍMA
- AKKUMULÁTOROS NAPELEM: 5,6 kW rendszer, 5 kW kapacitású tároló; inverter a garázsban
- Elektromos hálózat: réz vezeték, 3 fázis (20A+16A+16A), áram-védőkapcsolóval (FI relével) ellátott.
- Rezsi: gáz átalány kb. 15 000 Ft/hó; villany 800–1000 Ft/hó; víz egyéni fogyasztás

Kert és kinti extrák – KÉNYELEM, RENDEZETT KÖRNYEZET:
- Automata ÖNTÖZŐRENDSZER saját fúrt kútról
- HUSQVARNA ROBOTFŰNYÍRÓ tartozék

Biztonság:
- RIASZTÓ- és KAMERARENDSZER a teljes ingatlanon

Közlekedés és lokáció:
- Budapest az M5 autópályán kb. 30 perc
- Volánbusz sűrű járatokkal a Népligethez, vonat óránként KÖKI állomásra
- INÁRCS RENDEZETT, FEJLŐDŐ, KEDVELT település.

Amennyiben felkeltette a meghirdetett ingatlan az érdeklődését, keressen bizalommal.

Kihagyhatatlan ajánlatok: CSOK+, kedvezményes kamatozású lakáshitelek.
Az ország szinte összes bankjának a hiteleit is kínáljuk, egyedi, általunk igénybe vehető kedvezményekkel, díjmentes ügyintézéssel.

Családi ház részletei

Ár: 91 800 000 Ft
Méret: 123 négyzetméter
Azonosító: 11575954
Irodai azonosító: 389152
Cím: Akkumulátoros napelem rendszerrel.
Telek: 828 négyzetméter
Ingatlan állapota:
Jelleg: családi ház
Építőanyag: Kérdezzen rá a hirdetőtől »
Fűtés jellege: Cirkó
Fűtés módja: Gáz
Komfort fokozat: Összkomfort
Kor: 21-50 éves
Szintek száma: Földszintes
Egész szobák: 3

Egyéb jellemzők

  • Csatorna
  • Garázs
  • Pince
  • Terasz

Térkép


Így keressen családi házat négy egyszerű lépésben. Csupán 2 perc, kötelezettségek nélkül!

Szűkítse a családi házak
listáját
Válassza ki a megfelelő
családi házat
Írjon a hirdetőnek
Várjon a visszahívásra