Eladó családi ház Inárcs 165 000 000 Ft

Leírás

Eladó luxus otthon Inárcson – Egyedi, modern építészeti remekmű! 
Inárcs egyik legszebb, legnyugodtabb részén kínálunk eladásra egy luxus kivitelezésű, különleges építészeti stílusú családi házat, ahol a kényelem, az elegancia és a funkcionalitás tökéletes harmóniában találkozik.
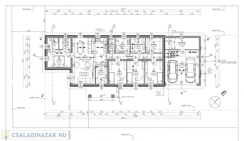
A tágas belső terek és a több hálószoba a család minden tagjának biztosítják a kényelmes, privát életteret, míg a nappali a közös pillanatok központi helyszíne – hangulatos kandallóval kiegészítve.
A szülői lakrész saját fürdőszobával és külön intimszférával került kialakításra, így maximális komfortot nyújt.
A modern felszereltségű otthon dupla garázzsal és elektromos kapuval rendelkezik, a pihenést pedig a teraszra telepített jakuzzi és szauna garantálja.
A parkosított udvar automata öntözőrendszerrel ellátott, a hangulatos kiülő terasz pedig tökéletes helyszín a nyári kikapcsolódásokhoz.
További extrák:


Központi klíma


Gépesített, beépített konyhabútor (az ár részét képezi)


Ha egy különleges megjelenésű, minden igényt kielégítő luxusotthont keres Inárcson, ez a ház Önre vár!
További információért és megtekintésért keresse bizalommal:Sponga Mária – +36 70 431 0007

Családi ház részletei

Ár: 165 000 000 Ft
Méret: 135 négyzetméter
Azonosító: 11573603
Telek: 1052 négyzetméter
Ingatlan állapota:
Jelleg: családi ház
Építőanyag: Kérdezzen rá a hirdetőtől »
Egész szobák: 4

Egyéb jellemzők

  • Csatorna
  • Garázs
  • Kábel TV
  • Melléképület
  • Parketta
  • Pince
  • Terasz

Így keressen családi házat négy egyszerű lépésben. Csupán 2 perc, kötelezettségek nélkül!

Szűkítse a családi házak
listáját
Válassza ki a megfelelő
családi házat
Írjon a hirdetőnek
Várjon a visszahívásra