Eladó családi ház Inárcs 118 000 000 Ft

Leírás

? ÖNÁLLÓ ÚJ ÉPÍTÉSŰ CSALÁDI HÁZ INÁRCSON – 1733 NM TELEK, HŐSZIVATTYÚ, KULCSRAKÉSZ!

Inárcs egyik legjobb részén, ÚJ ÉPÍTÉSŰ házak környezetében eladó egy NETTÓ 110 m²-es, önálló családi ház, KIEMELKEDŐEN NAGY, 1733 m²-ES TELKEN, modern műszaki tartalommal, KULCSRAKÉSZ kivitelben.

✔ Ritka, **1733 m² telek**
✔ Hőszivattyús padlófűtés
✔ 3 rétegű nyílászárók redőnnyel
✔ Önálló ház – nincs közös fal

? Főbb jellemzők

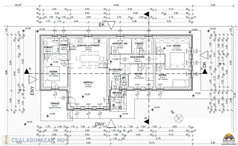
* Nettó 110 m² lakótér
* 1733 m² telek (kiemelkedő méret a környéken!)**
* Tégla építés (30 cm PTH)
* Új építés – kulcsrakész átadás

? Műszaki tartalom

* Hőszivattyús padlófűtés teljes felületen
* 3 rétegű műanyag nyílászárók redőnnyel
* 15 cm homlokzati hőszigetelés
* 10 cm lábazati szigetelés
* 20 cm födémszigetelés
* Antracit cserépfedés

Masszív, korszerű rétegrend:

* 15 cm padlószigetelés
* 2 réteg vízszigetelés
→ alacsony rezsi, hosszú távú értékállóság

? Telek és lehetőségek – EZ AZ IGAZI ELŐNY

A 1733 m²-es telek kiemelkedő adottságokat biztosít:

* tágas kert, privát élettér
* medence, kerti konyha, garázs vagy melléképület kialakítható
* akár további fejlesztési potenciál
* ideális nagycsaládosoknak vagy prémium életminőséghez

➡ AZ ILYEN MÉRETŰ TELEK RITKA A PIACON, különösen új építésű házzal kombinálva.

? Kinek ideális?

* családosoknak, akik nagy telket keresnek
* nyugalmat és teret igénylőknek
* befektetőknek (telekérték + új építés kombináció)

? Miért különleges?

* 1733 m² telek + új ház kombináció (ritka ajánlat)
* energiahatékony, modern gépészet
* kulcsrakész átadás
* gyorsan értékesíthető kategória

? Érdemes gyorsan lépni

Az ilyen paraméterekkel rendelkező ingatlanok – különösen ekkora telekkel – gyorsan gazdára találnak.
FINANSZÍROZÁS

* Otthonstart hitelre alkalmas
* Hitel esetén, díjmentes ügyintézés. Összes bank ajánlata egy helyen, kedvezményekkel.

Nem adta el az ingatlanát? Ne adja el piaci ár alatt! Minden ügyfelünknek ingyenesen felmérjük az otthonát, hogy biztos lehessen abban, valódi érték alapján dönt.
Hívjon vagy írjon nekünk a további információkért és a díjmentes felmérésért.

Ha felkeltettem érdeklődését, és szívesen megtekintené az ingatlant, hívjon bátran, akár hétvégén is!
Ha további információra van szükséged vagy szeretnéd megtekinteni ezt az ingatlant, kérlek, lépj kapcsolatba velünk!

Családi ház részletei

Ár: 118 000 000 Ft
Méret: 110 négyzetméter
Azonosító: 11614381
Telek: 1733 négyzetméter
Ingatlan állapota: Kitűnő
Jelleg: családi ház
Építőanyag: Kérdezzen rá a hirdetőtől »
Szintek száma: 1 szint
Egész szobák: 5

Egyéb jellemzők

  • Csatorna
  • Garázs
  • Kábel TV
  • Melléképület
  • Parketta
  • Pince
  • Terasz

Így keressen családi házat négy egyszerű lépésben. Csupán 2 perc, kötelezettségek nélkül!

Szűkítse a családi házak
listáját
Válassza ki a megfelelő
családi házat
Írjon a hirdetőnek
Várjon a visszahívásra