Eladó családi ház Inárcs 110 000 000 Ft

Leírás

 Álmai otthona Inárcson! 

Eladó egy most épülő, modern, energiatakarékos családi ház, amely minden szempontból megfelel a mai igényeknek és támogatási lehetőségeknek.

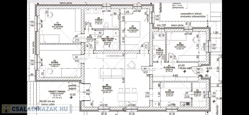
 Nettó 128 m² / Bruttó 150 m² alapterület

 1700 m²-es telek – hatalmas, parkosítható udvar, ideális családoknak, gyerekeknek, kert, medence vagy akár kerti tó kialakítására

4 hálószoba + nappali + konyha-étkező + 2 fürdőszoba – kényelmes és praktikus elosztás

 Hőszivattyús fűtés – környezettudatos és alacsony rezsiköltség

Világos, tágas nappali közvetlen kertkapcsolattal

Kiváló elhelyezkedés: Budapest az M5-ös autópályán kb. 20 perc alatt elérhető

 Óriási előny: A ház teljes mértékben megfelel a CSOK, Babaváró 3% hitel és egyéb kedvezményes konstrukciók feltételeinek, így akár több millió forint támogatással is megvásárolható!

Ez a ház ideális választás azoknak, akik szeretnék a főváros közelségét ötvözni a vidéki nyugalommal, nagy telekkel és alacsony fenntartási költségekkel.

 

Tervezett átadás 2026 április vége

Ha felkeltette érdeklődését kérem hívjon.O62O4OO4O26 Vass Erika 

Családi ház részletei

Ár: 110 000 000 Ft
Méret: 128 négyzetméter
Azonosító: 11571718
Telek: 840 négyzetméter
Ingatlan állapota: Kitűnő
Jelleg: családi ház
Építőanyag: Kérdezzen rá a hirdetőtől »
Fűtés jellege: Cirkó
Komfort fokozat: Összkomfort
Egész szobák: 5

Egyéb jellemzők

  • Csatorna
  • Garázs
  • Kábel TV
  • Melléképület
  • Parketta
  • Pince
  • Terasz

Így keressen családi házat négy egyszerű lépésben. Csupán 2 perc, kötelezettségek nélkül!

Szűkítse a családi házak
listáját
Válassza ki a megfelelő
családi házat
Írjon a hirdetőnek
Várjon a visszahívásra