Eladó családi ház Inárcs 105 000 000 Ft

Leírás

PRÉMIUM MŰSZAKI TARTALOMMAL ÉPÜLŐ, ÖNÁLLÓ CSALÁDI HÁZ INÁRCSON

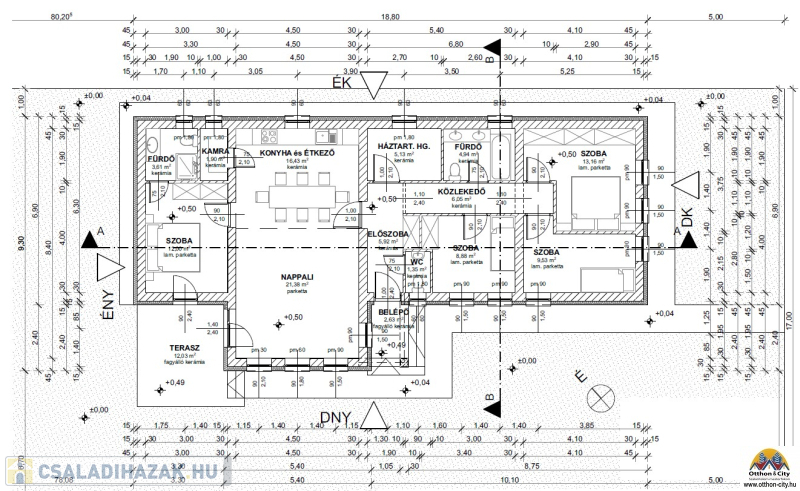
Inárcs egyik legdinamikusabban fejlődő részén, új építésű ingatlanok környezetében kínálunk megvételre egy nettó 110 m²-es, önálló családi házat, 650 m²-es telken, kulcsrakész kivitelben.

Főbb paraméterek

* Lakótér: 110 m²
* Telek: 650 m²
* Falazat: 30 cm PTH tégla
* Önálló családi ház (nincs közös fal)

Kiemelt műszaki tartalom

Az ingatlan korszerű, hosszú távon is értékálló műszaki megoldásokkal készül:

Hőszivattyús padlófűtés az egész házban
3 rétegű műanyag nyílászárók, redőnnyel
15 cm homlokzati hőszigetelés
10 cm lábazati szigetelés

Padlószerkezet (kiemelt előny):

* 15 cm hőszigetelés
* 2 réteg bitumenes vízszigetelés
* vasalt aljzat + kavicságy
→ kiváló hő- és vízszigetelési teljesítmény

Tetőszerkezet:

* cserépfedés (antracit)
* többrétegű szigetelés
* 20 cm födémszigetelés

Megjelenés

* Modern, letisztult homlokzat
* Törtfehér színvilág
* Antracit tető és bádogozás
* Esztétikus, időtálló kialakítás

Telek és környezet

A 650 m²-es telek ideális méretű:

* családi élethez
* kert, terasz, medence kialakításához

Csendes, rendezett utca, új építésű házak között, ami különösen fontos értéktartás szempontjából.

Előnyök összefoglalva

✔ Önálló családi ház
✔ Energiahatékony, modern gépészet
✔ Komoly műszaki tartalom (rétegrendekkel alátámasztva)
✔ Kulcsrakész átadás
✔ Új építésű környezet

Ideális választás

* családosoknak
* minőségi új építésű otthont keresőknek
* befektetőknek hosszú távú értéknövekedés céljából

Érdemes gyorsan dönteni

Az ilyen műszaki tartalommal rendelkező, önálló házak az agglomerációban gyorsan gazdára találnak.

Családi ház részletei

Ár: 105 000 000 Ft
Méret: 110 négyzetméter
Azonosító: 11614145
Telek: 650 négyzetméter
Ingatlan állapota: Kitűnő
Jelleg: családi ház
Építőanyag: Kérdezzen rá a hirdetőtől »
Szintek száma: 1 szint
Egész szobák: 5

Egyéb jellemzők

  • Csatorna
  • Garázs
  • Kábel TV
  • Melléképület
  • Parketta
  • Pince
  • Terasz

Így keressen családi házat négy egyszerű lépésben. Csupán 2 perc, kötelezettségek nélkül!

Szűkítse a családi házak
listáját
Válassza ki a megfelelő
családi házat
Írjon a hirdetőnek
Várjon a visszahívásra