Eladó családi ház Ináncs 14 950 000 Ft

Leírás

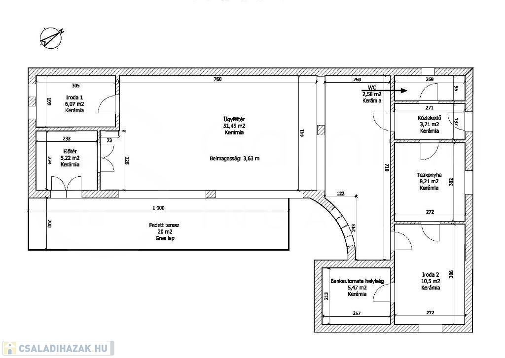
Ináncs központi részén a volt akarékszövetkezeti ingatlan (tulajdoni lap szerint: takarékszövetkezet) 514 m2- telekkel eladó!
Ár: 14.950.000, - Ft +Áfa

Helyiséglista:
-Előtér
-Iroda I.
-Ügyféltér
-Közlekedő
-Teakonyha
-Iroda II.
-Egyéb helyiség

Műszaki leírás:
Az ingatlan 1996-ban épült, földszintes kialakítással.Tégla falazatú, összetett nyeregtetős, (kontytető és félnyereg tető) pala és bitumines zsindely fedéses a felépítmény. Az épület födéme vasbeton gerendás födém, külső homlokzata kőporos vakolattal ellátott. Homlokzati nyílászárói fa szerkezetű ablakok, hőszigetelt üvegezéssel, jó minőségben.
Fűtését melegvíz-ellátását kombi gázkazán biztosítja.
A helyiségek burkolata mázas kerámia közepes műszaki állapotban.

Környezet:
Település központi

Családi ház részletei

Ár: 14 950 000 Ft+ÁFA
Méret: 113 négyzetméter
Azonosító: 11361247
Irodai azonosító: 109743
Cím: Ináncs
Telek: 514 négyzetméter
Ingatlan állapota:
Jelleg: családi ház
Építőanyag: Kérdezzen rá a hirdetőtől »
Fűtés jellege: Cirkó
Egész szobák: 5
Fél szobák: 2

Egyéb jellemzők

  • Terasz

Így keressen családi házat négy egyszerű lépésben. Csupán 2 perc, kötelezettségek nélkül!

Szűkítse a családi házak
listáját
Válassza ki a megfelelő
családi házat
Írjon a hirdetőnek
Várjon a visszahívásra