Eladó családi ház Ibrány 31 900 000 Ft

Leírás

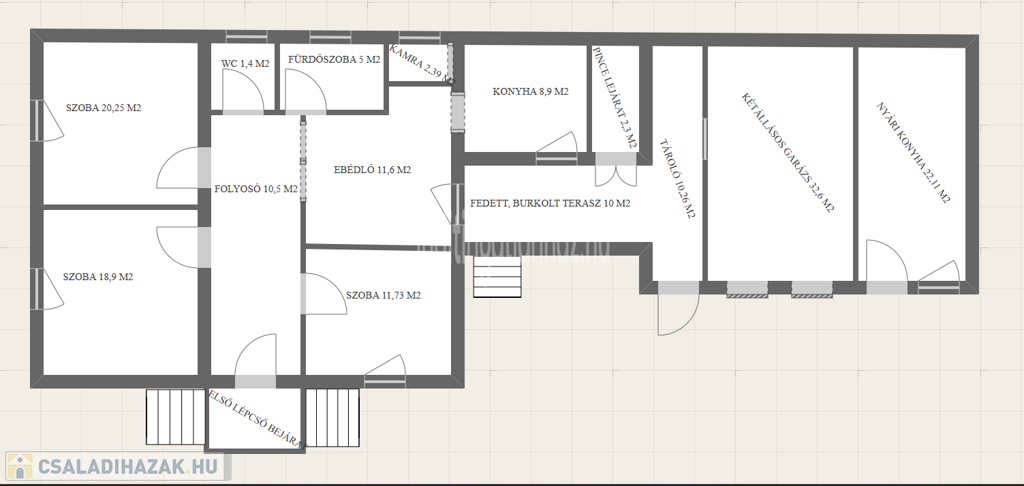
Ibrány csendes aszfaltozott utcájában eladó nettó 97 m2-s fűtött alapterületű három különnyíló szobás, konyha+étkezős, fürdőszoba és wc külön, kamra, gázkonvektor és kandalló fűtésű, műanyag és fa hőszigetelt nyílászárós tufa építésű, pala tetős jó állapotú családi ház mely külsőleg 5 cm-s szigetelést kapott a födémen 15 cm-s üveggyapottal borított. Az 1083 m2-s rendezett portán található 30-s téglából épült tároló, kétállásos garázs melynek automata garázskapuja van és nyári konyha, továbbá 9 m2-s pince mely a konyha alatt helyezkedik el, fedett terasz, térkövezett udvar, fúrott kút és ipari áram. Az ingatlan tehermentes a térképen minden épület fel van tüntetve, birtokba vétel akár azonnal. Amennyiben felkeltette az érdeklődését keressen, hiteligénylésben is tudok segíteni, VEVŐK RÉSZÉRE A KÖZVETÍTÉS DÍJTALAN!

Családi ház részletei

Ár: 31 900 000 Ft
Méret: 97 négyzetméter
Azonosító: 11605726
Irodai azonosító: 8778
Telek: 1083 négyzetméter
Ingatlan állapota:
Jelleg: családi ház
Építőanyag: Tufa
Fűtés jellege: Konvektoros
Fűtés módja: Gáz
Komfort fokozat: Összkomfort
Kor: 21-50 éves
Elhelyezkedés: Udvari
Szintek száma: Földszintes
Bútorozott: Nem bútorozott
Egész szobák: 2
Fél szobák: 1

Egyéb jellemzők

  • Beépíthető tetőtér
  • Csatorna
  • Garázs
  • Kábel TV
  • Melléképület
  • Padlás
  • Parketta
  • Pince
  • Terasz

Így keressen családi házat négy egyszerű lépésben. Csupán 2 perc, kötelezettségek nélkül!

Szűkítse a családi házak
listáját
Válassza ki a megfelelő
családi házat
Írjon a hirdetőnek
Várjon a visszahívásra