Eladó családi ház Hódmezővásárhely 55 000 000 Ft

Leírás

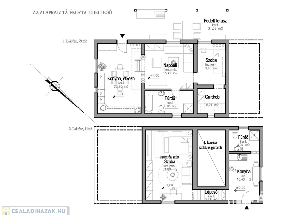
Hódmezővásárhelyen, Újkishomokon eladó egy épületben található két külön bejáratú lakóegységgel rendelkező családi ház.
Az ~59,00 m2 hasznos alapterületű ingatlant 2019-ben újították fel. Új külső hőszigetelő nyílászárók kerültek beépítésre, és felújításra került a konyha is. A fürdőszobát is ekkor újították fel, új burkolatokkal és szaniterekkel, valamint új Ariston vízmelegítő került beépítésre.
A ~41,00 m2 alapterületű lakóegység 2021.-ben kapta meg a mai arculatát. Itt is új külső nyílászárók kerültek beépítésre. Új a fürdőszoba és a konyha helyiség. Az itt található 24 m2 területű szoba szuterén szinten helyezkedik el. (lásd : alaprajzok)
A két lakrész összenyitható, a gardrób helyiség átalakításával, lépcső beépítésével.
Befektetésnek is jó választás, jelenlegi állapotban, azonnal kiadható két külön ingatlanként.
A szegedi bejárás autóval 15 percet vesz igénybe, Vásárhely belváros autóval 10 perc.

Néhány információ az ingatlanról, ami segíthet a döntésben:
-Telek területe: 761 m2
-Fedett terasz: ~21,00 m2
-Konvektoros fűtés
-Elektromos vízmelegítők
-Mobil garázs
-2 x 16 A

1.Lakóegység alapterülete: ~59,00 m2
-Nappali: ~15,00 m2
-Konyha-Étkező: ~22,00m2
-Szoba: ~8,00 m2
-Fürdő: ~8,00 m2 (kád, tusoló, mosdó, wc)
-Gardrób: ~5,00 m2

2. Lakóegység alapterülete: ~41,00 m2
-Szoba: ~24,00 m2
-Konyha: ~10,00 m2
-Fürdő: ~ 5,00 m2 ( tusoló, wc, mosdó)

Az ingatlannal kapcsolatos kérdéseivel várom hívását, a hét bármely napján.
Ügyfeleink számára irodánk teljes jogi hátteret, adás-vétellel kapcsolatos térítésmentes jogi tanácsadást biztosít.
Bank semleges hitelügyintézéssel, díjmentes hitelszűréssel és tanácsadással is hozzájárulunk, hogy megtalálja az ön számára legkedvezőbb megoldást.
(További képekért és információkért kérem hívjon!)

Családi ház részletei

Ár: 55 000 000 Ft
Méret: 100 négyzetméter
Azonosító: 11542351
Irodai azonosító: 794482
Telek: 761 négyzetméter
Ingatlan állapota: Átlagos
Jelleg: családi ház
Építőanyag: Tégla
Fűtés jellege: Konvektoros
Egész szobák: 3
Nappalik: 1

Egyéb jellemzők

  • Beépíthető tetőtér
  • Csatorna
  • Garázs
  • Melléképület
  • Pince
  • Terasz

Így keressen családi házat négy egyszerű lépésben. Csupán 2 perc, kötelezettségek nélkül!

Szűkítse a családi házak
listáját
Válassza ki a megfelelő
családi házat
Írjon a hirdetőnek
Várjon a visszahívásra