Eladó családi ház Hódmezővásárhely 110 000 000 Ft

Leírás

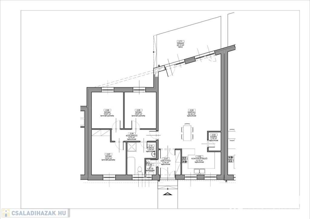
Eladó Hódmezővásárhelyen, Új-kishomokon a Mező utcában, új építésű 3 lakásos sorházban, 110,67 m2 hasznos alapterületű tégla ház. Az amerikai konyhás, nappali + 3 hálószobás ház remek tájolású, kényelmes életteret biztosít 4-5 fős család számára. Az ingatlanhoz ~ 420 m2 önálló kertrész tartozik, valamint társasház részére tervezett közös (6,00m x 3,00m) medence és napozótér.
A mai kor építési-, szerkezeti- és energetikai követelményeinek tökéletesen megfelelő épület tégla falait 15 cm hőszigeteléssel látják el, a vasbeton födém 30 cm hőszigeteléssel készül, a tetőre igény szerint napelemek kerülhetnek. Az energiatakarékos otthon fűtését, hűtését és meleg víz ellátását központi levegő-víz rendszerű hőszivattyú biztosítja.
A kivitelezés tervezett befejezése 2026 október, a feltüntetett ár a szerkezetkész állapotra vonatkozik.

Az ingatlan paraméterei:
- Telek: ~420m2
- Lakótér: 110,67 m2
- Terasz: 20,13 m2
- Konyha-étkező: 13.75 m2
- Nappali: 42,48 m2
- Szobák: 12,52 m2, 10,67 m2, 10,67 m2
- ~100 m2 privát, csak a tulajdonosok számára elérhető, medence és napozó-játszó tér

A szegedi bejárás autóval 15 percet vesz igénybe, Vásárhely belváros autóval 10 perc.
Az ingatlannal kapcsolatos kérdéseivel várom hívását, a hét bármely napján.

Ügyfeleink számára irodánk teljes jogi hátteret, adás-vétellel kapcsolatos térítésmentes jogi tanácsadást biztosít.
Bank semleges hitelügyintézéssel, díjmentes hitelszűréssel és tanácsadással is hozzájárulunk, hogy megtalálja az ön számára legkedvezőbb megoldást.
(További képekért és információkért kérem hívjon!)

Családi ház részletei

Ár: 110 000 000 Ft
Méret: 110 négyzetméter
Azonosító: 11541402
Irodai azonosító: 238371
Telek: 420 négyzetméter
Ingatlan állapota: Szerkezetkész
Jelleg: sorház
Építőanyag: Tégla
Fűtés jellege: Hőszivattyú
Egész szobák: 4
Nappalik: 1

Egyéb jellemzők

  • Beépíthető tetőtér
  • Csatorna
  • Garázs
  • Melléképület
  • Pince
  • Terasz

Így keressen családi házat négy egyszerű lépésben. Csupán 2 perc, kötelezettségek nélkül!

Szűkítse a családi házak
listáját
Válassza ki a megfelelő
családi házat
Írjon a hirdetőnek
Várjon a visszahívásra