Eladó családi ház Hévíz 299 000 000 Ft

Leírás


Igényes megjelenésű villa Hévíz közkedvelt utcájában! Igényes megjelenésű villa Hévíz közkedvelt utcájában!

A Gold Balaton Home Ingatlaniroda megvételre kínálja a 200 009-es sorszámú HÉVÍZI CSALÁDI HÁZAT

 

Panorámás kilátás, igényes megjelenésű villa!

2020-ban fejezték be a családi ház építését, ami 984 m2-es területen helyezkedik el Hévíz közkedvelt utcájában.

40 m2-es medence napozó terasszal a rendezett udvar ékköve. Fűthető, ellenáramoltatóval, víz forgatóval rendelkezik a gépészet.

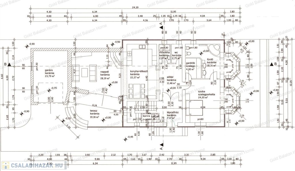
A családi ház kettő nagy amerikai konyhás nappalival, három hálószobával, három fürdőszobával, teraszokkal kényelmes életteret biztosít Ön és családja számára. Szintenként külön is lezárható, használható.

 

- Földszinti helyiségek: amerikai konyhás nappali 50,46 m2, szoba 24,2 m2, fürdőszoba 15,31 m2, gardrób 4,3 m2, mosókonyha 2,97 m2, külön WC 2,75 m2, kamra 1,9 m2, előtér 11,48 m2, lépcsőház 7,17 m2, terasz 19,18 m2, garázs 23,79 m2.

- Emeleti helyiségek: amerikai konyhás nappali 49,94 m2, szoba 16,16 m2, terasz 5,08 m2, szoba 15,54 m2, terasz 5,08 m2, fürdőszoba 6,28 m2, gardrób 1,8 m2, fürdőszoba 2,49 m2, kamra 3,18 m2, előtér 7,56 m2, lépcsőház 6,28 m2, kazánház 1,48 m2, erkély 2,7 m2, terasz 28,56 m2.

 

Műszaki paraméterek:

Főfalakig visszabontották a meglévő épületet, és teljesen újjá építették a házat a mostani műszaki követelmények szerint.

- 2020-ban került átadásra a 15 cm-es külső hőszigeteléssel ellátott családi ház

- héjazata cserép, födém szigetelés 30 cm

- műanyag nyílászárók három rétegű üvegezéssel, szúnyoghálóval

- fűtés kondenzációs gázkazánnal, hőleadás padlófűtéssel

- nappaliban fatüzeléses kandalló

- elektromos hálózat 380 Volt

- hűtő-fűtő klíma minden szobában és a nappalikban

- konyhabútorok gépekkel felszerelve

- elektromos kapu és garázsajtó

Az ingatlan egyéb jellemzői:

- rendezett, körbekerített udvar

- térkővel lerakott udvarrész

Hévízi tó 800 m-re található.

Amennyiben hirdetésem felkeltette érdeklődését, kérem, keressen bizalommal!

 

Irodánk szolgáltatásai igény esetén: ügyvéd, energetikai tanúsítvány, hitelügyintézés, értékbecslés, statikus, földmérő, belsőépítész. Biztonság, szakértelem - GOLD BALATON HOME - „Élj ott, ahol mások nyaralnak”

Családi ház részletei

Ár: 299 000 000 Ft
Méret: 280 négyzetméter
Azonosító: 11607391
Irodai azonosító: 731200009
Telek: 984 négyzetméter
Ingatlan állapota: Kitűnő
Jelleg: családi ház
Építőanyag: Tégla
Fűtés jellege: Központi
Komfort fokozat: Dupla komfort
Egész szobák: 5

Így keressen családi házat négy egyszerű lépésben. Csupán 2 perc, kötelezettségek nélkül!

Szűkítse a családi házak
listáját
Válassza ki a megfelelő
családi házat
Írjon a hirdetőnek
Várjon a visszahívásra