Eladó családi ház Hernád 74 900 000 Ft

Leírás

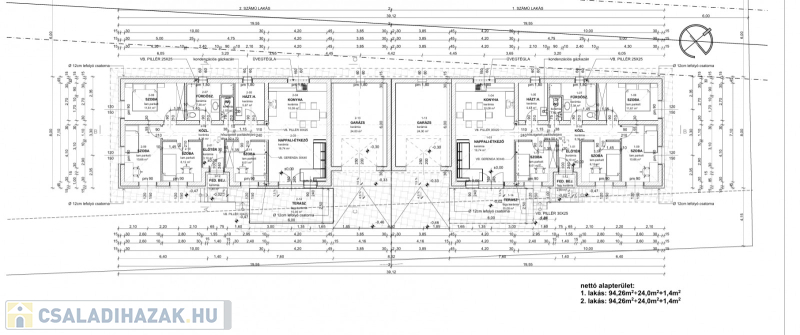
Eladó Hernádon egy kulcsrakész, belső elhelyezkedésű ikerházfél!  
AZONNAL KÖLTÖZHETŐ!!
 Budapesttől 30 percre, csendes, nyugodt környéken, eladásra kínálunk egy 700 m² telken fekvő, 120 m²alapterületű ikerházfelet. A hasznos alapterület 96,5 m², melyben található 4 szoba, előtér, közlekedő, nappali-étkező, konyha, háztartási helyiség, wc, fürdőszoba, fedett bejárat és egy 20 m² nyitott terasz. Valamint tartozik hozzá 24 m² garázs, ahol a két lakás kapcsolódik. Az udvar elválasztásához egy kerítés fog épülni, ami tovább növeli a nyugodt környezetet.
 A lakás külön mérőórákkal rendelkezik. A fűtést és a melegvizet energiatakarékos hőszivattyús klíma és bojler biztosítja, valamint minden helyiségben felszerelt elektromos fűtőtest. 30 cm-es főfalak, 15 cm-es szigetelés, 3 rétegű üvegezésű nyílászárók, 12 cm aljzatszigetelés és 30 cm tetőszigetelés segítik alacsonyan tartani a költségeket. A közvetlen kertkapcsolat körülbelül 400 m², aminek a gondozását fúrt kút biztosítja, amely ideális lehet kertészkedésre, pihenésre, családi vagy baráti összejövetelekre.
Az autóbeálló térkővel burkolt és nyár végére a kapu elektromos nyitóval lesz felszerelve, ami a tovább kényelmet növeli! 
Ha felkeltette érdeklődését, további információkért és megtekintésért keressen bizalommal!!! 
Heszlerné Szilvia Tel: 06204500850

Családi ház részletei

Ár: 74 900 000 Ft
Méret: 120 négyzetméter
Azonosító: 11609082
Telek: 700 négyzetméter
Ingatlan állapota: Kitűnő
Jelleg: ikerház
Építőanyag: Kérdezzen rá a hirdetőtől »
Komfort fokozat: Összkomfort
Egész szobák: 4

Egyéb jellemzők

  • Csatorna
  • Garázs
  • Kábel TV
  • Melléképület
  • Parketta
  • Pince
  • Terasz

Így keressen családi házat négy egyszerű lépésben. Csupán 2 perc, kötelezettségek nélkül!

Szűkítse a családi házak
listáját
Válassza ki a megfelelő
családi házat
Írjon a hirdetőnek
Várjon a visszahívásra