Eladó családi ház Hernád 69 900 000 Ft

Leírás

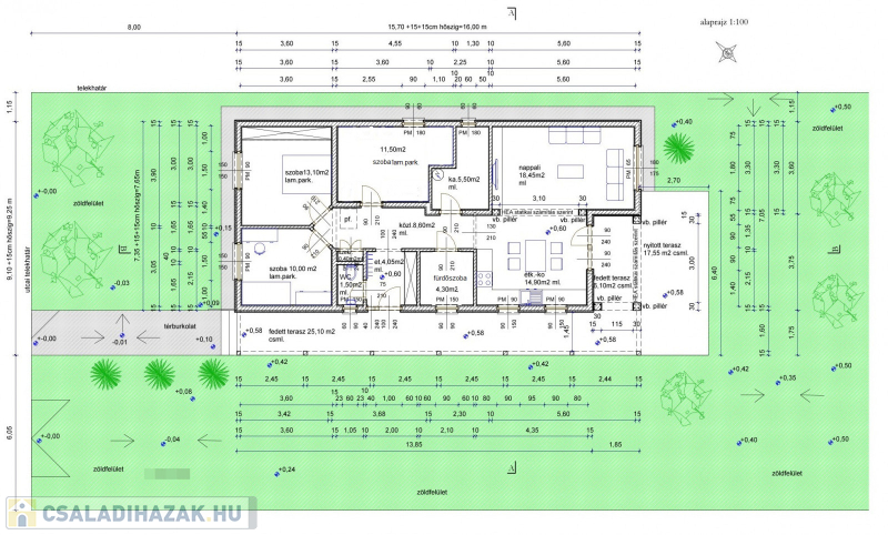
Eladó Hernádon 120 nm alapterületű új építésű családi ház mely 830 nm-es telekre épül a látványtervek alapján. A ház beton alapon B30 téglából 15 cm drayvit szigeteléssel, 6 légkamrás 3 rétegű üveg műanyag nyílászárókkal, betoncserép fedéssel fedve. Az ár burkolatok nélkül 69.900.000.- Ft. Az ár kulcsrakészen 78.000.000.- Ft, parkosított udvarral. Burkolatok 5.000ft / nm-ig az árban. Fűtése/Hűtése hőlégszivattyú, padlófűtéssel (Hőszivattyú adatai: 1. Energy Save prémium kategóriás gép 9KW osztott rendszer 2. fan coil Nord magasfali berendezések 3. a melegvíz és a puffer HEIZER típusú tárolok utólagosan elektromos fűtőpatronnal kiegészíthető.)
A villany 3×16 A, H tarifához előkészítve. A nagykapu elektromos lesz befejezésre vár.
Községben megtalálható bölcsöde, óvoda, iskola, gyermek orvos, háziorvos, bevásárlási lehetőség, busz, vonat közlekedés és az M5 autópálya, illetve az 5-ös főút közelsége is.
Az ingatlan per és tehermentes!
Ajánlom kisgyermekes családoknak, 3 gyermekes CSOK + hitel igénybe vehető rá!!!
Amennyiben az ingatlan felkeltette érdeklődését, kérem hívjon bizalommal. Gáspár Kata

Családi ház részletei

Ár: 69 900 000 Ft
Méret: 120 négyzetméter
Azonosító: 11470187
Telek: 830 négyzetméter
Ingatlan állapota: Átlagos
Jelleg: családi ház
Építőanyag: Kérdezzen rá a hirdetőtől »
Fűtés jellege: Egyéb
Komfort fokozat: Összkomfort
Egész szobák: 4

Egyéb jellemzők

  • Csatorna
  • Garázs
  • Kábel TV
  • Melléképület
  • Parketta
  • Pince
  • Terasz

Így keressen családi házat négy egyszerű lépésben. Csupán 2 perc, kötelezettségek nélkül!

Szűkítse a családi házak
listáját
Válassza ki a megfelelő
családi házat
Írjon a hirdetőnek
Várjon a visszahívásra